SG
20117
12 2

Kampong Glam Conservation Area

Starting From - SGD 12,438

Type: Retail

Tenure: Freehold

Floor (sqft): 625


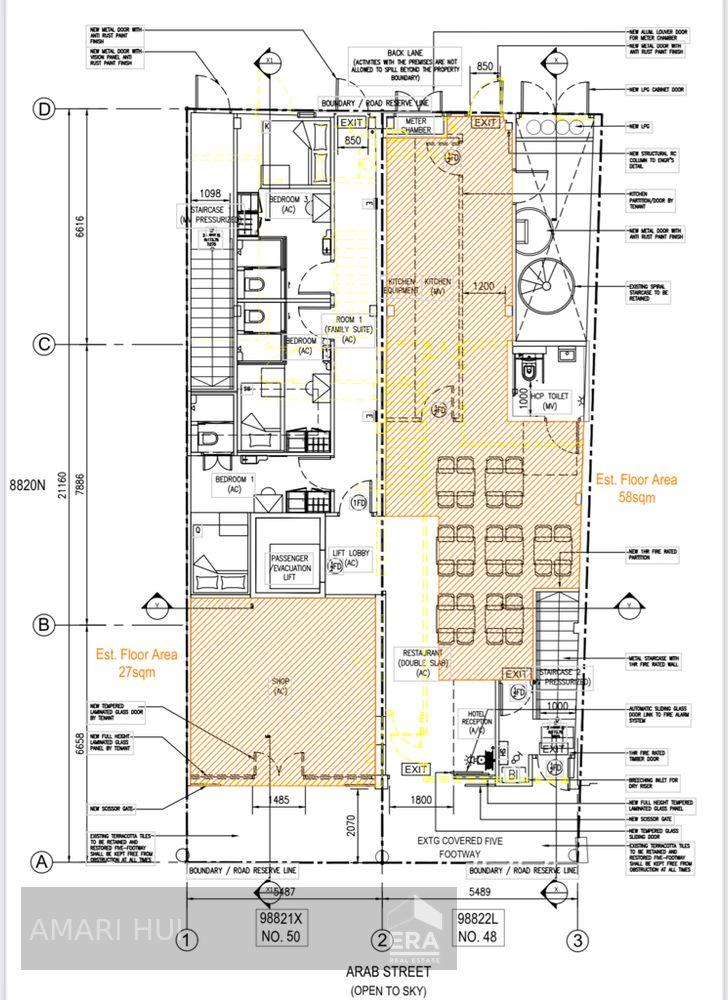
48 Arab Street Restaurant for Rent

48 Arab Street Restaurant for Rent
#0102 Cafe is 625sf $12,437.5 + GST
Available now
3 phase
Walking distance to Bugis MRT
Heritage shophouse in tourist vicinity
Grease trap, kitchen exhaust duct
Floor trap, waterpoint, attached washroom

Address

48 Arab Street 199745

D07


Amari Hui

Prop-GPT: Amari Hui, 48 Arab Street Restaurant for Rent

Prop-GPT: Contact by Phone9088 1210   Prop-GPT: Contact by WhatsAppWhatsApp
Email: yellowman@outlook.sg Prop-GPT: Contact by email Email
Registration: R069629D

Brought to you by Prop-GPT: The AI-Powered Property Guru



Similar Posts



Prop-GPT: Condominium: D08   CHEAP 3 Bedroom with Stunning City View for Rent

CHEAP 3 Bedroom with Stunning City View for Rent ...

3 bedrooms, 2 bathrooms, 1851 sqft | Jellicoe Road, Lavender, Citylight, 208766, D08

Asking Rent (SGD/month): 9,400

Condominium, 99-year Leasehold

1851 sqft (floor)

3 Bedrooms2Bathrooms

Perry Siow


Prop-GPT: Condominium: D08  Citylights

Citylights Condominium For Rent, $9,400, 3 Bed 2 ...

3 bedrooms, 2 bathrooms, 1851 sqft Jellicoe Road, 208766, D08

Asking Rent (SGD/month): 9,400

Condominium, 99-year Leasehold

1851 sqft (floor)

3 Bedrooms2Bathrooms

Perry Siow


Prop-GPT: Condominium: D07  South Beach Residences

South Beach Residences

2 bedrooms, 2 bathrooms, 1313 sqft | South Beach Residences, D07, Singapore

S$ 12,000 /mo

Condominium, 99-year lease

1313 sqft (floor)

2 Bedrooms2Bathrooms

Cheryl Teh


Prop-GPT: Condominium: D07  Midtown Modern

Midtown Modern

4 bedrooms, 3 bathrooms, 1442 sqft | Midtown Modern, D07, Singapore

S$ 12,800 /mo

Condominium, 99-year lease

1442 sqft (floor)

4 Bedrooms3Bathrooms

Alvin Khoo


Prop-GPT: Condominium: D08  Citylights

Citylights Condominium For Rent, $9,500, 3 Bed 3 ...

3 bedrooms, 3 bathrooms, 1894 sqft | Jellicoe Road, 208749, D08

Asking Rent (SGD/month): 9,500

Condominium, 99-year Leasehold

1894 sqft (floor)

3 Bedrooms3Bathrooms

David

   ← back to search results

QUICK LINKS