4B Begonia Road
Asking Rent (SGD/month): 6,800
Type: Corner Terrace
Land (sqft): 3,000 sqft
Bedrooms: 4
Bathrooms: 5

Furnishing: Partially Furnished
Corner Terrace along Begonia Road For Rent
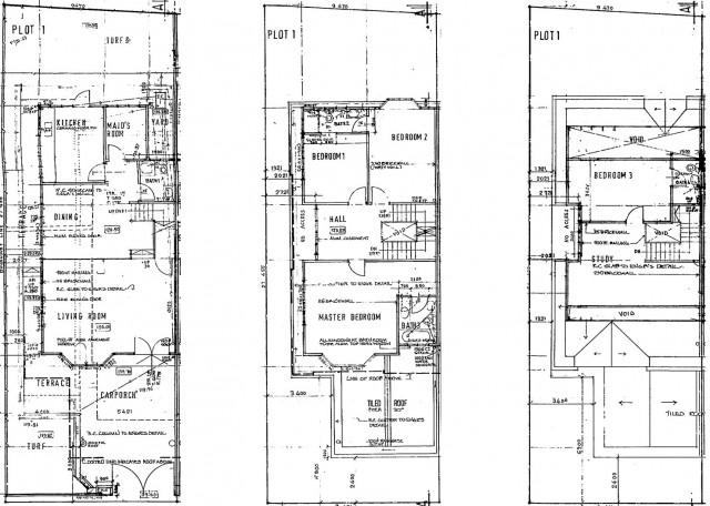
4 bedrooms plus 1 helper/utility room and 5 bathrooms
Level 1: Living, Dining, Kitchen, Granny Room, 2 Bathrooms, Utility/Helper Room, Yard, Porch
Level 2: Family Area, 1 Master Room with Attached Bathroom, Common Room with Attached Bathroom
Level 3: Junior Master with Attached Bathroom and Study Room
Key Features
Mins Walk to Main Road (Yio Chu Kang Road)
Huge Porch, able to park up to 2 cars
Able to park multiple cars by road side
Mins Walk to Greenwich V
Supermarket
Restaurant
Fast Food
Many More!
Contact Zen Chua 8.1.5.0.5.5.2.2 for Viewing Today! Dont Miss!
Address
4B Begonia Road, D19
D19