Sims Urban Oasis
Asking Rent (SGD/month): 5,200
Type: Condominium
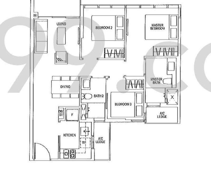
Floor (sqft): 818
Bedrooms: 3
Bathrooms: 2

Furnishing: Partially Furnished
**Luxurious Living at Sims Urban Oasis**
Discover the epitome of urban sophistication with this exquisite condominium available for rent at Sims Urban Oasis. Perfectly positioned at 2 Sims Drive, District 14, this stunning property offers an unparalleled opportunity for young professionals seeking a blend of luxury and convenience. With three spacious bedrooms and two elegantly designed bathrooms, this residence promises a comfortable and stylish living environment.
Priced at an attractive $5,200 per month, this condo is an exceptional choice for those who appreciate the finer things in life. The contemporary design and premium finishing touches create a refined atmosphere that resonates with the luxury market. Whether you're hosting intimate gatherings or enjoying a quiet evening at home, this property provides the perfect setting.
Embrace the vibrant lifestyle that awaits you in this coveted locale. As an active listing, this Sims Urban Oasis home offers the ideal space for renters who value both privacy and community. Experience the perfect combination of modern living and urban accessibility at this exclusive address. Secure your viewing today and step into a world of elegance and comfort.
Address
Sims Drive, 387386, D14 387386
Geylang, D14