Bartley Ridge
Asking Rent (SGD/month): 4,288
Type: Condominium
Tenure: 99-year Leasehold
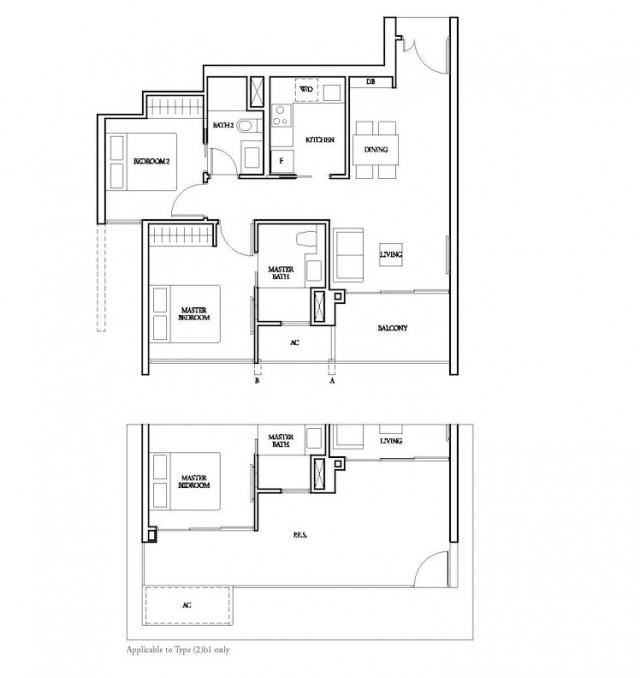
Floor (sqft): 883
Bedrooms: 2
Bathrooms: 2

Furnishing: Partially Furnished
Bartley Ridge 2 Bedroom Ground Floor For Rent
Cheap ! Cheap !
From 1st Sept 25
Property Highlights:
- Open to short and long term lease as well
- Slightly elevated ground floor unit: Enjoy an elevated position for added privacy.
- Spacious layout: Plenty of room to live and entertain.
- Furniture Provided: Sofa, TV, TV console, coffee table, dining table set, fridge, oven, washer dryer, queen size bed set
- Dedicated dining area
- Direct access to the patio from the master bedroom.
- Enjoy added privacy with just one neighbouring unit.
About Bartley Ridge:
- Convenient location: Adjacent to Bartley MRT Station.
- Prime location: Highly sought-after area.
- Strong investment potential: Excellent opportunity for investment.
- Full condo facilities: Includes swimming pool, tennis court, half basketball court, and gym.
- Nearby schools: Within 1 km of Maris Stella High, Paya Lebar Methodist Girls' School, and Cedar Primary.
For more comprehensive information and to arrange a viewing, please contact Vernon Low at 9155 3875.
Address
Mount Vernon Road, 368055, D13 368055
Macpherson, D13