The Verve
Asking Rent (SGD/month): 3,900
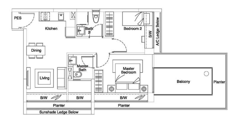
Type: Condominium
Floor (sqft): 797
Bedrooms: 2
Bathrooms: 2

Furnishing: Fully Furnished
This unit is a 2 Bedrooms and 2 Baths Condo apartment for Rent in The Verve, a quality condo in Singapore.
Key features
- Well-maintained and renovated condition
- Well-kept unit condition
- Move-in condition
- Excellent condition
- Fully furnished unit
- Efficient layout
- Functional layout
- Spacious layout
- Squarish layout
- Bright and airy
- No afternoon sun
- Quiet and peaceful facing
- City view
- Good size balcony
- Open concept kitchen
- Close to MRT
- Convenient location
The Verve condo is the perfect one for you! The Verve is one of the hottest properties for rent in District 12 which contains the areas of Balestier and Toa Payoh.
Address
Jalan Rajah Road, 329138, D12 329138
D12