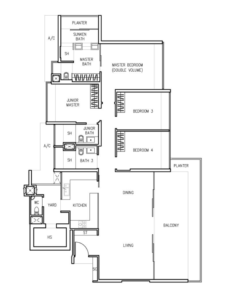
The Trizon
Asking Rent (SGD/month): 11,500
Type: Condominium
Tenure: Freehold
Floor (sqft): 2153
Bedrooms: 4
Bathrooms: 4

Furnishing: Fully Furnished
Cozy and spacious 4 1 bedroom unit with one of the best facing in the development. Perfect home
with a comfy interior and pleasant surroundings. Great choice for expat living with popular address in
Mount Sinai area!
*****Sought-after unit in the area*****
- High floor
- Pool view
- Windy
- Naturally bright
- Privacy with only 4 units on the level in quiet enclave
- Peaceful and serene surroundings
- Regular-shaped & highly functional layout in all rooms
- Very well-maintained
*****High quality features, furnishings & fixtures*****
- Double-volume ceiling in master bedroom with chandelier
- Built-in wardrobes for all bedrooms
- Invisible grilles installed at balcony for safety
- Elegant master bathroom with marble floor & walls
- Standing rain-shower & step-down sunken bath
*****Great location to be in*****
- Easily accessible from either Mount Sinai Drive or Pandan Valley
- Close to amenities like Jelita Shopping Centre, Ghim Moh wet market/food centre, Clementi Central
Hub & Holland Village
- 15 minutes walk to Dover Road MRT Station
- Within 1 km to Henry Park Primary School
- City centre & airport conveniently accessible via expressways AYE & PIE
Partial-furnished
Available in mid July
Don't miss this opportunity for your ideal home!
Address
Ridgewood Close, 276698, D10 276698
Holland, D10