The Vermont On Cairnhill
Asking Rent (SGD/month): 20,000
Type: Condominium
Tenure: Freehold
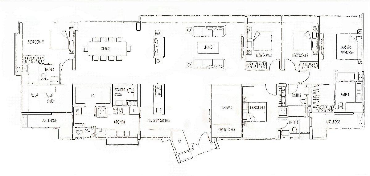
Floor (sqft): 2702
Bedrooms: 5
Bathrooms: 6

Furnishing: Partially Furnished
Ready to move in!
Spacious living with expansive city view
Brand New Kitchen Appliances and AC
New Carpentry for wet and dry kitchen
5 Bedrooms (2 with walk-in wardrobe)
6 Bathroom (3 ensuite)
Helper's Room/Bombshelter with sliding door
Indoor Terrace with Airwell
Maximised indoor living space with no balcony
Immediate Availability
Partially Furnished (white goods only)
1. Transport
5min walk to Newton MRT Station
Quick access to major expressway (PIE or CTE)
2. Schools
Within 1km
Anglo Chinese School (Junior)
St Margaret's Primary School
Within 1-2km
Anglo Chinese School (Prmary)
Farrer Park Primary School
River Valley Primary School
Singapore Chinese Girls' School
St. Joseph's Institution Junior
3. Supermarket/ Eateries/ Shopping
Newton Hawker Centre
Orchard Road shopping belt
FairPrice Finest Gourmet @ Balmoral Plaza
Cold Storage @ Chancery Court and Paragon
FairPrice Finest @ Scotts Square
4. Nature/ Recreational
Singapore Botanic gardens
Cairnhill Community Club
Future Sky Park along Bukit Timah Canal
If you'd love to make this your home, please call us at 9234 3428. Cheers!
Note: The floor plan and images pictured here is just for reference only and may not be the most updated or accurate at the time of listing.
Address
Cairnhill Rise, 229746, D09 229746
Cairnhill, D09