Hullet Rise
Asking Rent (SGD/month): 6,600
Type: Condominium
Tenure: Freehold
Floor (sqft): 1185
Bedrooms: 3
Bathrooms: 3

Furnishing: Partially Furnished
CONDO FOR RENT:
Hullet Rise
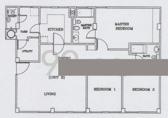
UNIT DETAILS
3 Bedrooms Helpers Room, 3 Bathrooms
Size of approx 1185sqft
Bright and breezy unit
Well maintained apartment
Good layout, spacious and feels bigger than its size
Partial furnished
Available immediately
Asking $6,600
NOT FOR CO LIVING
2 more units available - one is available from December 2025 and asking $6,600, another available from mid to end January 2026 and asking $7,000
LOCATION
~Short walk to Somerset MRT
~Minutes walk to the Orchard shopping belt
~Extremely convenient with all the malls, amenities and amazing transport links
~Many bus services plying the area
$6,600
CALL NOW FOR AN EXCLUSIVE VIEWING!
Bhavina Kaur
Call me @ 91708295
LIKE MY PAGE WWW.FACEBOOK.COM/SOLDBYBHAVINA
Address
Hullet Road, 229159, D09 229159
Cairnhill, D09