Loft @ Rangoon
Asking Rent (SGD/month): 3,000
Type: Condominium
Tenure: Freehold
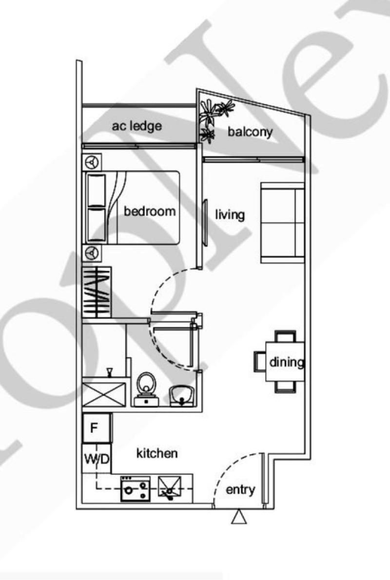
Floor (sqft): 409
Bedrooms: 1
Bathrooms: 1

Furnishing: Fully Furnished
1-Bedroom Unit for Rent at Loft @ Rangoon (409 sqft)
Fully furnished move in with just your luggage
Quiet facing enjoy peace and privacy
Available immediately hassle-free and ready for you
Suitable for single professionals or couples
Location & Accessibility:
2 mins walk to Farrer Park MRT (North East Line)
Near City Square Mall & Mustafa Centre great for daily needs and shopping
Surrounded by cafes, eateries, and local delights along Rangoon Road
Close to medical hub Connexion & Farrer Park Hospital
Facilities:
Rooftop swimming pool
Gym
Secure access & lift lobby
Call 93218529 to arrange viewing today
Address
Rangoon Road, 218392, D08 218392
D08