Sky Everton
Asking Rent (SGD/month): 5,500
Type: Condominium
Tenure: Freehold
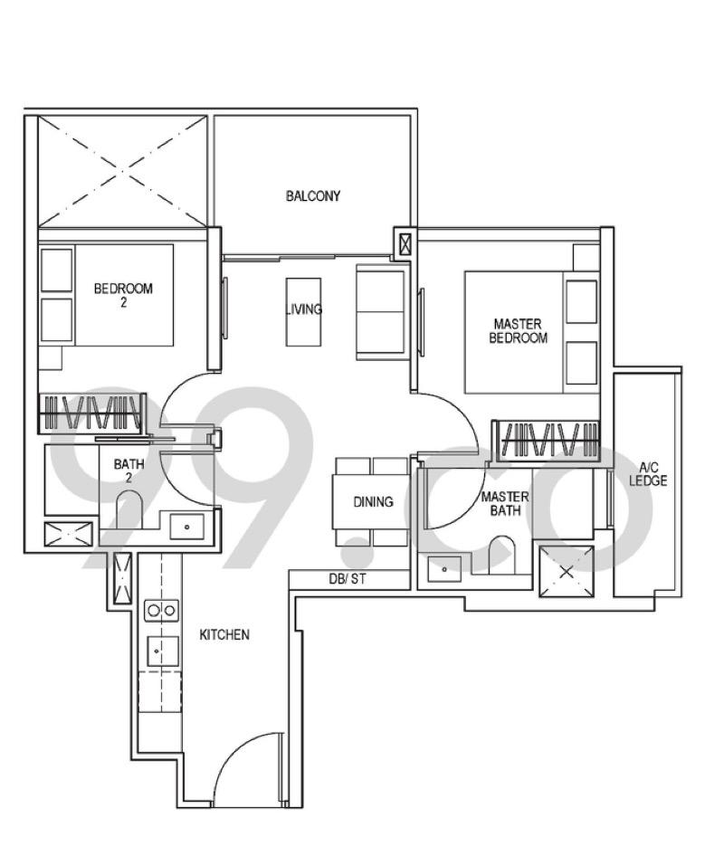
Floor (sqft): 646
Bedrooms: 2
Bathrooms: 2

Furnishing: Partially Furnished
Sky Everton
2beds, 2baths
646sqft
SKY EVERTON TOP OBTAINED!!
. Very high floor
. Unblocked skyline view
. Bright and good ventilation
. Most efficient and functional layout
. Good ceiling height
. Good size balcony for chilling and relaxing
. Quality finishing
Boasting four spectacular levels of exclusive facilities :
An array of attraction is the facilities offered to residents on
. Level 1 - Garden Oasis
. Level 5 - the Piazza
. Level 14 - Sky Forest
. Level 24 - Sky Club (offers panoramic view of the waterfront and the beautiful skyline)
Residents can enjoy their stay, work and entertainment all at one location!!
Great accessibilities and amenities:
. Located in the most vibrant Everton Road in Tanjong Pagar, CBD area!
. Within walking distance to Outram and future Cantonment MRT Station!
. Nearby shopping malls :
- Tiong Bahru Plaza
- 100AM at Tras Street
- Icon Village
- China Square
. Nearby supermarkets:
- NTUC at Tanjong Pagar
- NTUC / Don Don Donki at Amara
- Cold Storage at China Square
. Nearby bus-stops:
- Blk 3 Everton Rd (196/197/61/166/167/120)
Keys on hand!!
Viewing flexible!!
Just call Pauline at 94572966.
Address
Everton Road, 089396, D02 089396
D02