The Sail @ Marina Bay
Asking Rent (SGD/month): 6,200
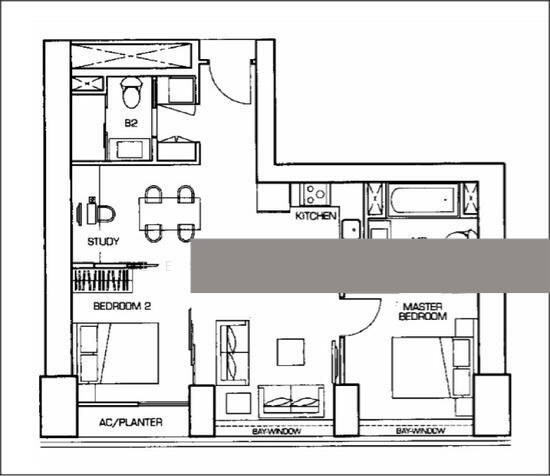
Type: Condominium
Tenure: 99-year Leasehold
Floor (sqft): 883
Bedrooms: 2
Bathrooms: 2

Furnishing: Fully Furnished
Experience upscale urban living at its finest with this stunning 2-bedroom condo situated on a high floor at The Sail @ Marina. Offering an unblocked view , this exquisite residence is available for rent soon
Location Highlights:
Prime waterfront location in the heart of Marina Bay
Close proximity to Marina Bay Sands, Gardens by the Bay, and other attractions
Direct access to Marina Bay MRT station for easy commuting
Nearby shopping, dining, and entertainment options
Vibrant city living with a mix of nature and modernity
Don't miss this opportunity to immerse yourself in the epitome of luxury living at The Sail @ Marina. Contact us today to schedule a viewing and secure your future home. Experience the best of Marina Bay living like never before!
Address
Marina Boulevard, 018987, D01 018987
Marina, D01