SG
31598
14 6

547D Segar Road

S$ 390,000

Type: HDB Flat

Tenure: 99-year lease

Floor (sqft): 506

Bedrooms: 1 Prop-GPT: Bedrooms  Bathrooms: 1 Prop-GPT: Bathrooms

Developer: Housing & Development Board (HDB)

Constructed: TOP in 2014


Highlights:
  • 2A HDB for sale
  • Listed on 12 Aug 2025
  • S$ 770.75 psf
  • Not tenanted
  • High floor level

547D Segar Road offering minimal built-insideal for homeowners looking to design and personalise their space

Welcome to this cozy High Floor 2rm HDB unit in Bukit Panjang, located at 547D Segar Road. Perfect for families and individuals seeking comfort and accessibility.

Key Features:
- Just steps away from a 24-hour Sheng Siong Supermarket for all your grocery needs
- A few minutes walk to Coffeeshop, offering a variety of affordable dining options
- Short walk Segar LRT Station, connecting you easily to the rest of Singapore
- Close to schools, parks, and shopping amenities like Greenridge Shopping Centre
Enjoy the vibrant neighborhood vibe with everything you need just around the corner.

Remaining Lease: 89 years
All ethnic group and citizenship can buy (AUGUST 2025)

Seller requires 3 months Extension Stay.

Address

547D Segar Road, D23, Singapore 674547

Dairy Farm, D23


Chua RenJie (RJ)

Prop-GPT: Chua RenJie (RJ), 547D Segar Road

Prop-GPT: Contact by Phone9270 6555   Prop-GPT: Contact by WhatsAppWhatsApp
Email: rjchua.sg@gmail.com Prop-GPT: Contact by email Email
Registration: R059664J

Brought to you by Prop-GPT: The AI-Powered Property Guru



Similar Posts



Prop-GPT: HDB Apartment: D23 Bukit Panjang 106 Gangsa Road

106 Gangsa Road HDB Apartment For Sale, $468,888, ...

2 bedrooms, 2 bathrooms, 785 floor area | Gangsa RoadBukit Panjang (D23)

Asking Price (SGD): 468,888

HDB Apartment, 99-year Leasehold

785 sqft (floor)

2 Bedrooms2Bathrooms

Joe Ng


Prop-GPT: HDB Apartment: D23 Bukit Panjang 219 Petir Road

219 Petir Road HDB Apartment For Sale, $460,000, ...

2 bedrooms, 2 bathrooms, 785 floor area | Petir RoadBukit Panjang (D23)

Asking Price (SGD): 460,000

HDB Apartment, 99-year Leasehold

785 sqft (floor)

2 Bedrooms2Bathrooms

Joe Ng


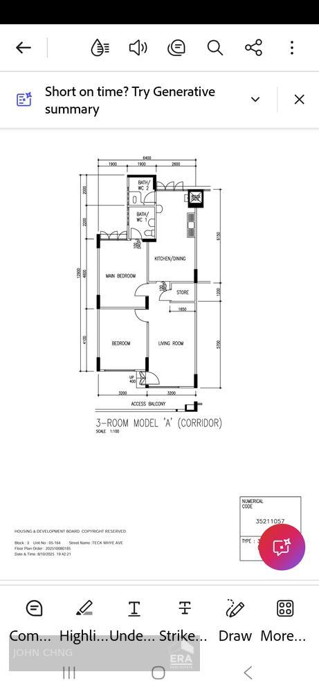
Prop-GPT: HDB Flat: D23 Choa Chu Kang 25 Teck Whye Lane

25 Teck Whye Lane

3 bedrooms, 2 bathrooms, 990 floor area | 25 Teck Whye Lane, D23, Singapore

S$ 468,888

HDB Flat, 99-year lease

990 sqft (floor)

3 Bedrooms2Bathrooms

Amy Tan


Prop-GPT: HDB Flat: D23 Choa Chu Kang 1 Teck Whye Avenue

1 Teck Whye Avenue

2 bedrooms, 2 bathrooms, 796 floor area | 1 Teck Whye Avenue, D23, Singapore

S$ 450,000

HDB Flat, 99-year lease

796 sqft (floor)

2 Bedrooms2Bathrooms

Malvin Lim


Prop-GPT: HDB Apartment: D23 Choa Chu Kang 25 Teck Whye Lane

25 Teck Whye Lane HDB Apartment For Sale, ...

3 bedrooms, 2 bathrooms, 990 floor area | Teck Whye LaneChoa Chu Kang (D23)

Asking Price (SGD): 468,888

HDB Apartment, 99-year Leasehold

990 sqft (floor)

3 Bedrooms2Bathrooms

Wilson Mah


Prop-GPT: HDB Apartment: D23 Choa Chu Kang 25 Teck Whye Lane

25 Teck Whye Lane HDB Apartment For Sale, ...

3 bedrooms, 2 bathrooms, 990 floor area | Teck Whye LaneChoa Chu Kang (D23)

Asking Price (SGD): 468,888

HDB Apartment, 99-year Leasehold

990 sqft (floor)

3 Bedrooms2Bathrooms

Wilson Mah


Prop-GPT: HDB - 2 room: D23 Choa Chu Kang 3 Teck Whye Avenue

3 Teck Whye Ave

2 bedrooms, 2 bathrooms, 796 floor area | 3 Teck Whye Avenue

Negotiable - SGD 430,000

HDB - 2 room, Leasehold 99

796 sqft (floor)

2 Bedrooms2Bathrooms

John Chng


   ← back to search results

QUICK LINKS