351B Canberra Road
Asking Price (SGD): 570,000
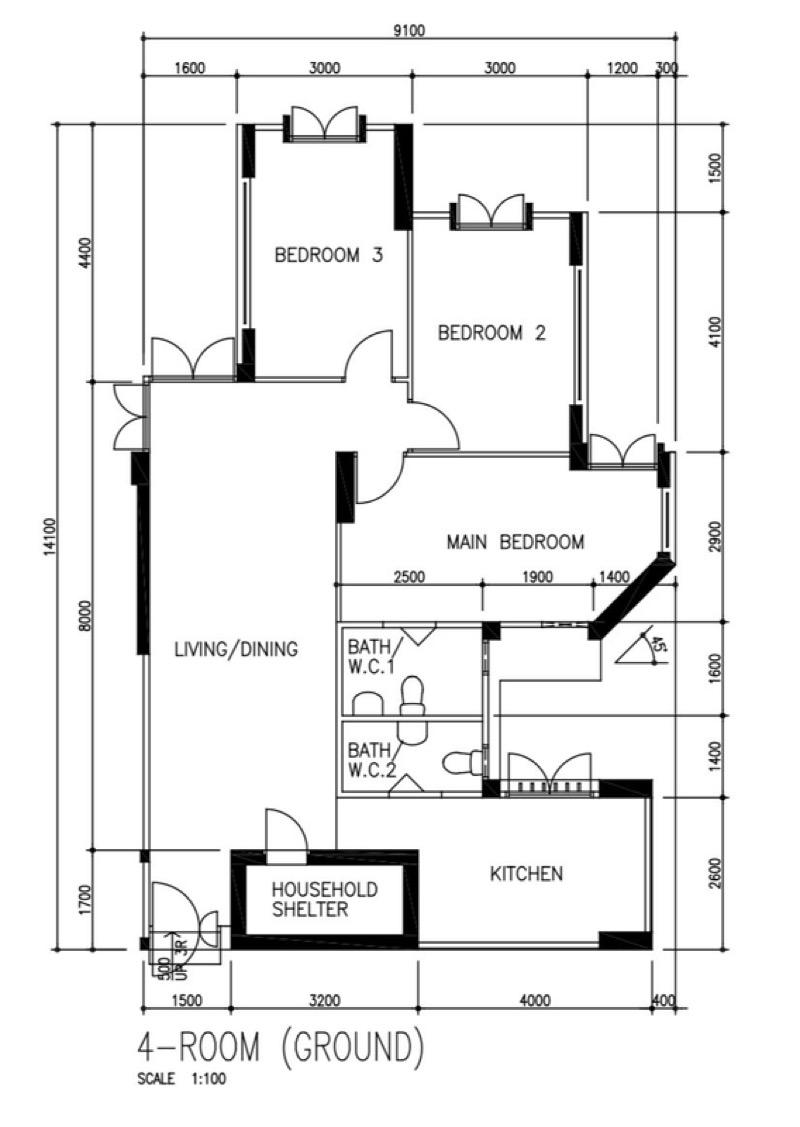
Type: HDB Apartment
Tenure: 99-year Leasehold
Floor (sqft): 1001
Bedrooms: 3
Bathrooms: 2

Furnishing: Unfurnished
Walking distance to MRT, many primary school within 1Km. And ammedities within walking distance.
Address
Canberra RoadSembawang (D27) 752351
D27