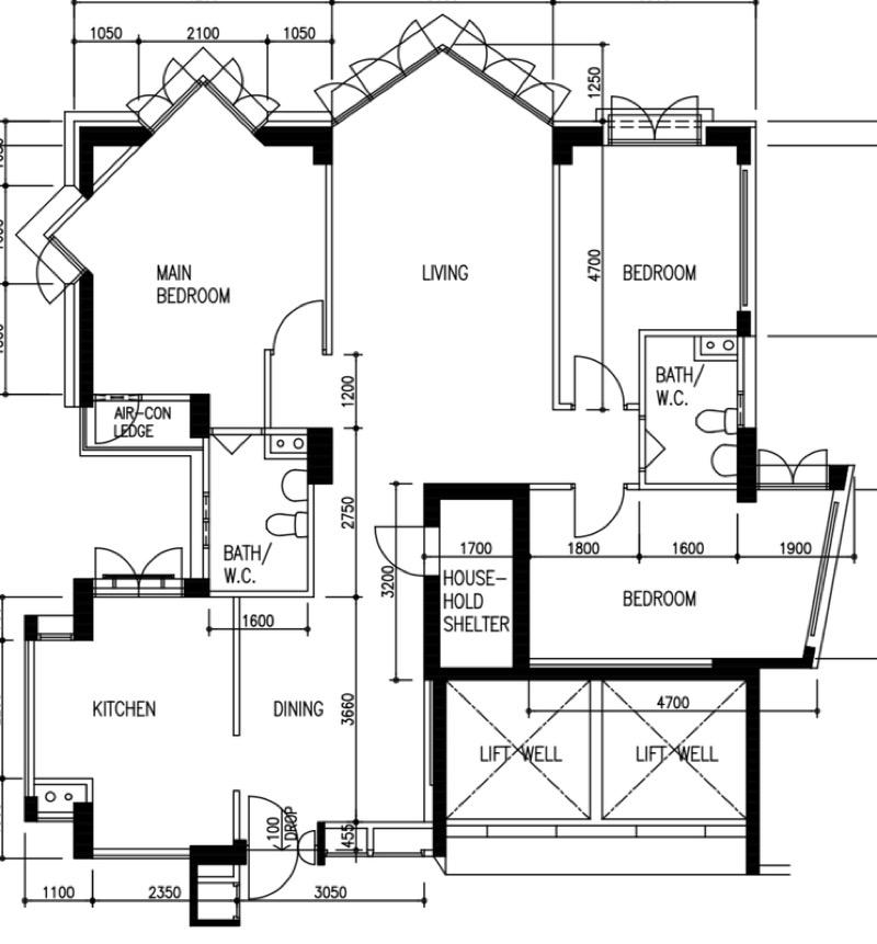
486 Admiralty Link
Asking Price (SGD): 618,000
Type: HDB Apartment
Tenure: 99-year Leasehold
Floor (sqft): 1194
Bedrooms: 3
Bathrooms: 2

Furnishing: Partially Furnished
***Super cheap! cheap!! Super high floor 5 Room flat. Unblocked view. Bright and windy. Corner unit***
Address
Admiralty LinkSembawang (D27) 750486
D27