282 Choa Chu Kang Avenue 3
Asking Price (SGD): 830,000
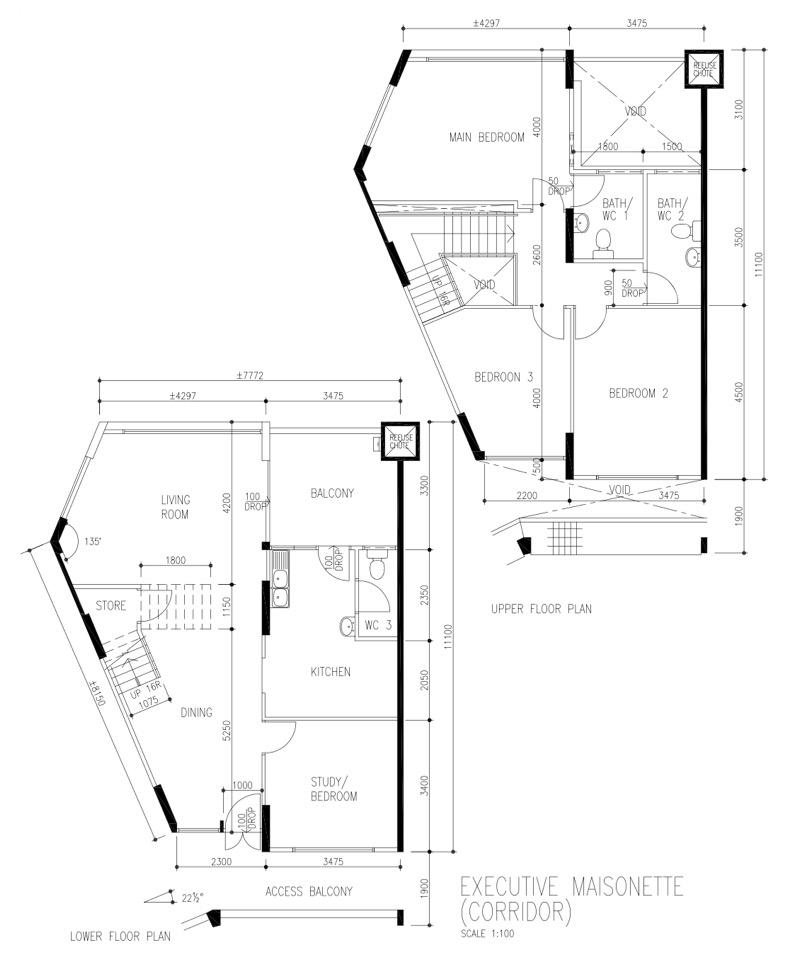
Type: HDB Apartment
Tenure: 99-year Leasehold
Floor (sqft): 1636
Bedrooms: 4
Bathrooms: 3

Furnishing: Partially Furnished
Discover the perfect home for first-time buyers and growing families at 282 Choa Chu Kang Avenue 3. This executive maisonette, located in the vibrant District 23, offers an exceptional opportunity to own a spacious property at an attractive price of just $830,000. Built in 1991, this HDB apartment is one of the younger options available, ensuring you benefit from modern design and construction.
Address
Choa Chu Kang Avenue 3Choa Chu Kang (D23) 680282
Choa Chu Kang, D23