231 Compassvale Walk
Asking Price (SGD): 580,000
Type: HDB Apartment
Tenure: 99-year Leasehold
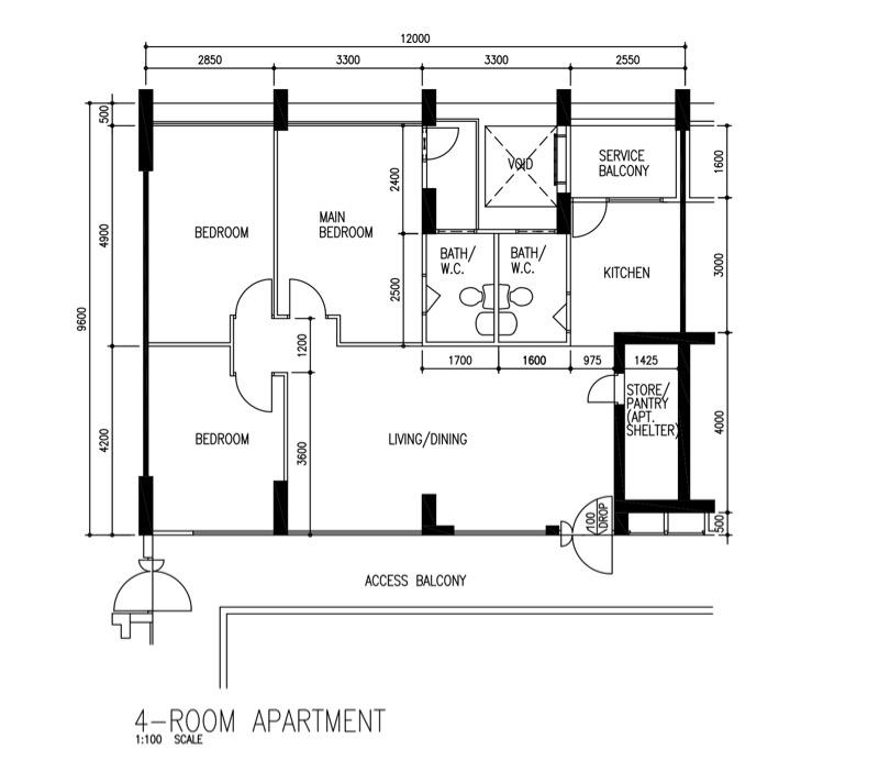
Floor (sqft): 1087
Bedrooms: 3
Bathrooms: 2

Furnishing: Unfurnished
C.H.E.A.P Huge Very High-Floor 4-Room Breezy, Efficient Layout
Address
Compassvale WalkSengkang (D19) 540231
Sengkang, D19