124 Bedok Reservoir Road
Asking Price (SGD): 630,000
Type: HDB Apartment
Tenure: 99-year Leasehold
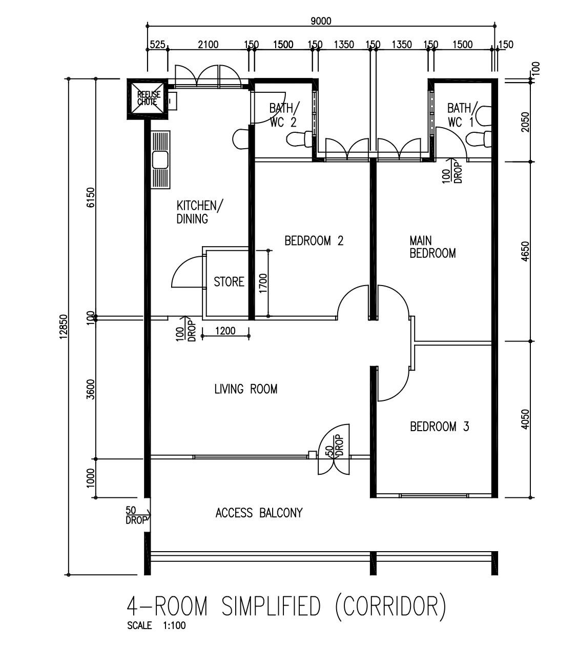
Floor (sqft): 904
Bedrooms: 3
Bathrooms: 2

Furnishing: Unfurnished
Pure Selling , No Extension Required
Address
Bedok Reservoir RoadBedok (D16) 470124
D16