SG
40222
13 6

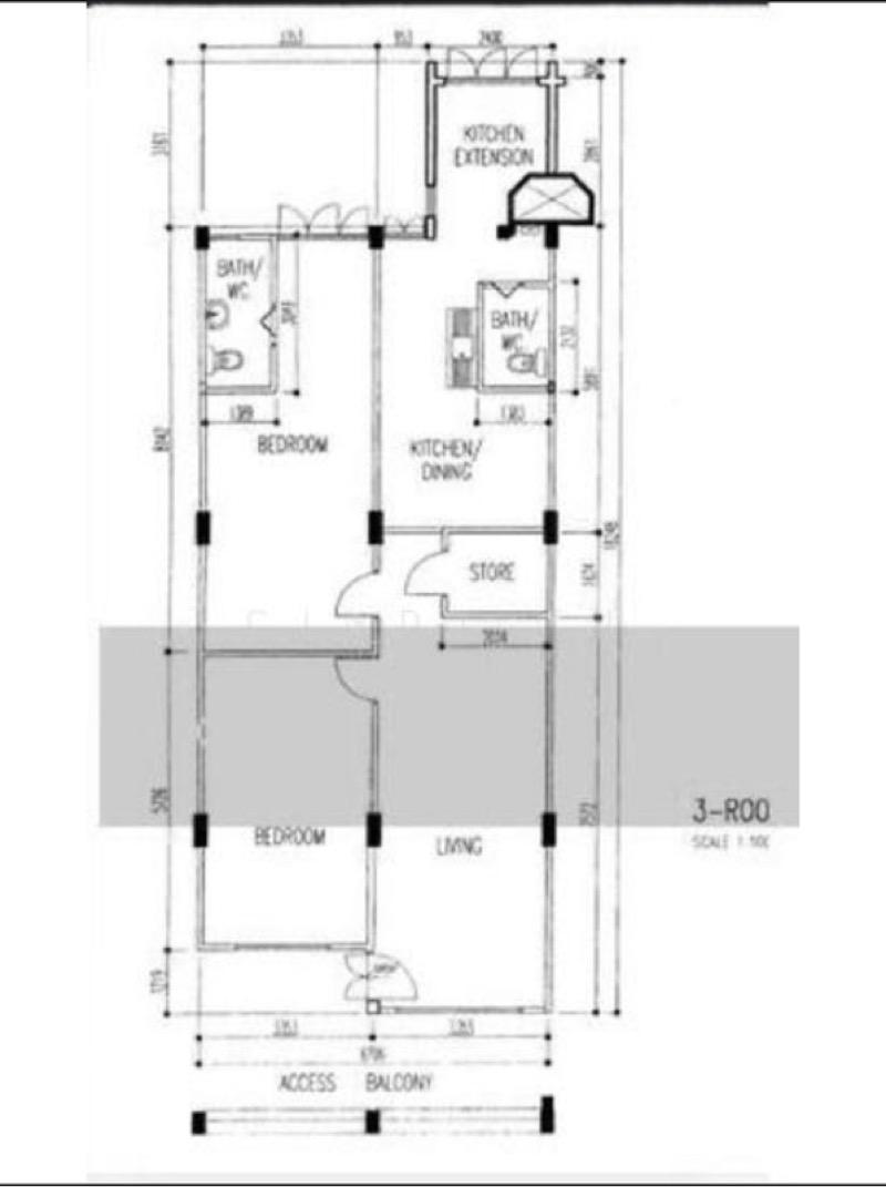
14 Kampong Arang Road

Asking Price (SGD): 788,000

Type: HDB Apartment

Tenure: 99-year Leasehold

Floor (sqft): 1108

Bedrooms: 2 Prop-GPT: Bedrooms  Bathrooms: 2 Prop-GPT: Bathrooms

Furnishing: Partially Furnished


Rare & Spacious 3RM Flat at 14 Kg Arang Rd (103sqm!)

Address

Kampong Arang RoadKallang/Whampoa (D15) 431014

Amber Road, D15


Alvin Yap

Prop-GPT: Alvin Yap, 14 Kampong Arang Road HDB Apartment For Sale, $788,000, 2 Bed 2 Bath 1,108 sqft $711.00 psf

Prop-GPT: Contact by Phone9187 0028   Prop-GPT: Contact by WhatsAppWhatsApp
Email: alvin.yap@propnex.com Prop-GPT: Contact by email Email
Registration: R008220E

Brought to you by Prop-GPT: The AI-Powered Property Guru



Similar Posts



Prop-GPT: Condominium: D15  Suites @ Katong

Suites @ Katong

0 bedroom, 1 bathroom, 431 sqft | Suites @ Katong, D15, Singapore

S$ 820,000

Condominium, Freehold

431 sqft (floor)

1Bathrooms

Beatrice Ng


Prop-GPT: Condominium: D15 Amber Road Haig 162

Haig 162 Condominium For Sale, $747,000, 1 Bed 1 ...

1 bedroom, 1 bathroom, 366 floor area | Haig Road, 438773, D15

Asking Price (SGD): 747,000

Condominium, Freehold

366 sqft (floor)

1 Bedrooms1Bathrooms

Andrew


Prop-GPT: Apartment: D14  Parc Esta

Parc Esta Apartment For Sale, $900,000, 1 Bed 1 ...

1 bedroom, 1 bathroom, 420 sqft | Sims Avenue, 408967, D14

Asking Price (SGD): 900,000

Apartment, 99-year Leasehold

420 sqft (floor)

1 Bedrooms1Bathrooms

Yian Wong


Prop-GPT: HDB Flat: D14  56 Cassia Crescent

56 Cassia Crescent

3 bedrooms, 2 bathrooms, 1087 sqft | 56 Cassia Crescent, D14, Singapore

S$ 899,000

HDB Flat, 99-year lease

1087 sqft (floor)

3 Bedrooms2Bathrooms

Lillian Koh


Prop-GPT: Condominium: D14 Geylang Sims Urban Oasis

Sims Urban Oasis Condominium For Sale, $799,999, ...

1 bedroom, 1 bathroom, 463 sqft | Sims Drive, 387386, D14

Asking Price (SGD): 799,999

Condominium, 99-year Leasehold

463 sqft (floor)

1 Bedrooms1Bathrooms

John Tan


Prop-GPT: Condominium: D14  Grandview Suites @ Geylang

Grandview Suites @ Geylang Condominium For Sale, ...

1 bathroom, 420 sqft | Geylang Lorong 22, 398664, D14

Asking Price (SGD): 650,000

420 sqft (floor)

1Bathrooms

Jeslyn Lim


Prop-GPT: HDB Apartment: D15 Marine Parade 45 Marine Crescent

45 Marine Crescent HDB Apartment For Sale, ...

3 bedrooms, 2 bathrooms, 947 sqft | Marine CrescentMarine Parade (D15)

Asking Price (SGD): 688,000

HDB Apartment, 99-year Leasehold

947 sqft (floor)

3 Bedrooms2Bathrooms

Sebastian Teo Wee Kee


Prop-GPT: Apartment: D14 Geylang Avant Residences

Avant Residences Apartment For Sale, $855,000, 2 ...

2 bedrooms, 1 bathroom, 527 sqft | Aljunied Rd, 389799, D14

Asking Price (SGD): 855,000

Apartment, 99-year Leasehold

527 sqft (floor)

2 Bedrooms1Bathrooms

Stephanie Ethel Tan


Prop-GPT: HDB Flat: D14 Geylang 128 Geylang East Avenue 1

128 Geylang East Avenue 1

5 bedrooms, 2 bathrooms, 1421 sqft | 128 Geylang East Avenue 1, D14, Singapore

S$ 908,000

HDB Flat, 99-year lease

1421 sqft (floor)

5 Bedrooms2Bathrooms

Ashley Lee


Prop-GPT: HDB Apartment: D14 Geylang 8B Upper Boon Keng Road

8B Upper Boon Keng Road HDB Apartment For Sale, ...

3 bedrooms, 2 bathrooms, 1023 sqft | Upper Boon Keng RoadKallang/Whampoa (D14)

Asking Price (SGD): 850,000

HDB Apartment, 99-year Leasehold

1023 sqft (floor)

3 Bedrooms2Bathrooms

Nizah Yusoff


Prop-GPT: Condominium: D15  Everitt Edge

Everitt Edge Condominium For Sale, $780,000, 1 ...

1 bedroom, 1 bathroom, 430 sqft | Joo Chiat Place, 427800, D15

Asking Price (SGD): 780,000

Condominium, Freehold

430 sqft (floor)

1 Bedrooms1Bathrooms

Gary Go


Prop-GPT: HDB Flat: D14  9 Eunos Crescent

9 Eunos Crescent

3 bedrooms, 2 bathrooms, 980 sqft | 9 Eunos Crescent, D14, Singapore

S$ 650,000

HDB Flat, 99-year lease

980 sqft (floor)

3 Bedrooms2Bathrooms

Samuel Phua


Prop-GPT: HDB Flat: D15 Marine Parade 12 Marine Terrace

12 Marine Terrace

3 bedrooms, 2 bathrooms, 1291 sqft | 12 Marine Terrace, D15, Singapore

S$ 880,000

HDB Flat, 99-year lease

1291 sqft (floor)

3 Bedrooms2Bathrooms

Ada Ho


Prop-GPT: HDB Apartment: D15 Marine Parade 2 Marine Terrace

2 Marine Terrace HDB Apartment For Sale, ...

3 bedrooms, 2 bathrooms, 118 sqft | Marine TerraceMarine Parade (D15)

Asking Price (SGD): 888,888

HDB Apartment, 99-year Leasehold

118 sqft (floor)

3 Bedrooms2Bathrooms

Latha Kannan


Prop-GPT: HDB Flat: D14  54 Cassia Crescent

54 Cassia Crescent

3 bedrooms, 2 bathrooms, 1001 sqft | 54 Cassia Crescent, D14, Singapore

S$ 598,989

HDB Flat, 99-year lease

1001 sqft (floor)

3 Bedrooms2Bathrooms

Kennis Cai


Prop-GPT: Condominium: D15  D'Castilia

D'Castilia

1 bedroom, 1 bathroom, 624 sqft | D'Castilia, D15, Singapore

S$ 980,000

Condominium, Freehold

624 sqft (floor)

1 Bedrooms1Bathrooms

Jave Ong


Prop-GPT: Apartment: D14  Grandview Suites @ Geylang

Grandview Suites @ Geylang

0 bedroom, 1 bathroom, 461 sqft | Grandview Suites @ Geylang, D14, Singapore

S$ 780,000

Apartment, Freehold

461 sqft (floor)

1Bathrooms

Danny Lim


Prop-GPT: Condominium: D14 Geylang Sims Urban Oasis

Sims Urban Oasis

1 bedroom, 1 bathroom, 409 sqft | Sims Urban Oasis, D14, Singapore

S$ 850,000

Condominium, 99-year lease

409 sqft (floor)

1 Bedrooms1Bathrooms

Joylyn Ho


Prop-GPT: HDB Apartment: D14  341 Ubi Avenue 1

341 Ubi Avenue 1 HDB Apartment For Sale, ...

4 bedrooms, 2 bathrooms, 86 sqft | Ubi Avenue 1Geylang (D14)

Asking Price (SGD): 640,000

HDB Apartment, 99-year Leasehold

86 sqft (floor)

4 Bedrooms2Bathrooms

Sheryee Lok


Prop-GPT: Condominium: D15 Joo Chiat H Residences

1 Bedder Freehold Below 1 Million

1 bedroom, 1 bathroom, 474 sqft | 50a Lorong H Telok Kurau

Price on Enquiry - SGD 848,000

Condominium, Freehold

474 sqft (floor)

1 Bedrooms1Bathrooms

Clement Lan

   ← back to search results

QUICK LINKS