107 Jalan Bukit Merah
Asking Price (SGD): 368,000
Type: HDB Apartment
Tenure: 99-year Leasehold
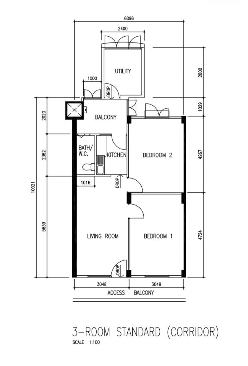
Floor (sqft): 678
Bedrooms: 3
Bathrooms: 1

Furnishing: Partially Furnished
Discover this rare and centrally located HDB apartment at 107 Jalan Bukit Merah, offering exceptional value for first-time buyers, young professionals, and families. This move-in ready unit provides an affordable entry into the heart of District 03, with excellent connectivity and convenience.
This spacious 3-bedroom, 1-bathroom unit has been fully renovated just five years ago, ensuring a modern and comfortable living environment. An upgraded utility room adds practicality, making it ideal for families seeking functional space in a well-maintained home.
This active listing combines affordability with quality, making it an outstanding choice for those looking to invest in a central location. Dont miss this opportunity to own a well-maintained property in a sought-after area at an attractive price.
Address
Jalan Bukit MerahBukit Merah (D03) 160107
Tiong Bahru, D03