91 Tanglin Halt Road
Asking Price (SGD): 1,430,000
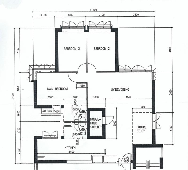
Type: HDB Apartment
Tenure: 99-year Leasehold
Floor (sqft): 1184
Bedrooms: 4
Bathrooms: 2

Furnishing: Unfurnished
Discover the exceptional opportunity to own a luxurious HDB Apartment at 91 Tanglin Halt Road, situated in the vibrant District 03 of Singapore. This exclusive property, built in 2007, offers the perfect blend of modern living and convenience, making it an ideal choice for first-time homebuyers and young professionals. With a listing price of S$1,680,000, this sale presents a rare chance to secure a prime residence in a sought-after location.
Address
Tanglin Halt RoadQueenstown (D03) 142091
D03