168 OCEAN DRIVE
Asking Price (SGD): 27,500,000
Type: Detached
Tenure: 99-year Leasehold
Land (sqft): 9,680 sqft
Bedrooms: 7

Furnishing: Partially Furnished
Welcome to 168 Ocean Drive, an extraordinary detached house nestled in the prestigious Sentosa Cove, Singapore's most coveted waterfront enclave. This stunning landed property stands as a testament to luxury and elegance, offering a rare opportunity for astute investors and discerning buyers seeking an unparalleled living experience. With its expansive waterway views and proximity to the sea, this home embodies the quintessence of opulent coastal living. Available for sale at SGD 27,500,000, this masterpiece is a rare gem in the luxury real estate market.
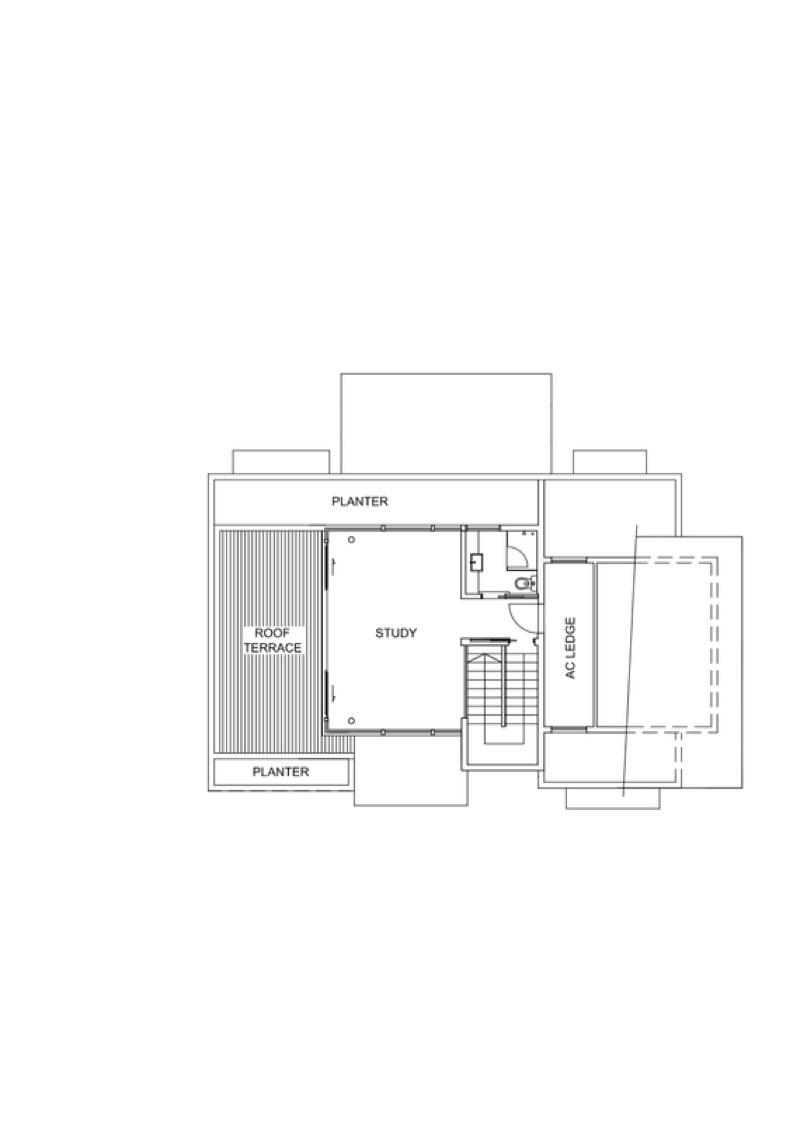
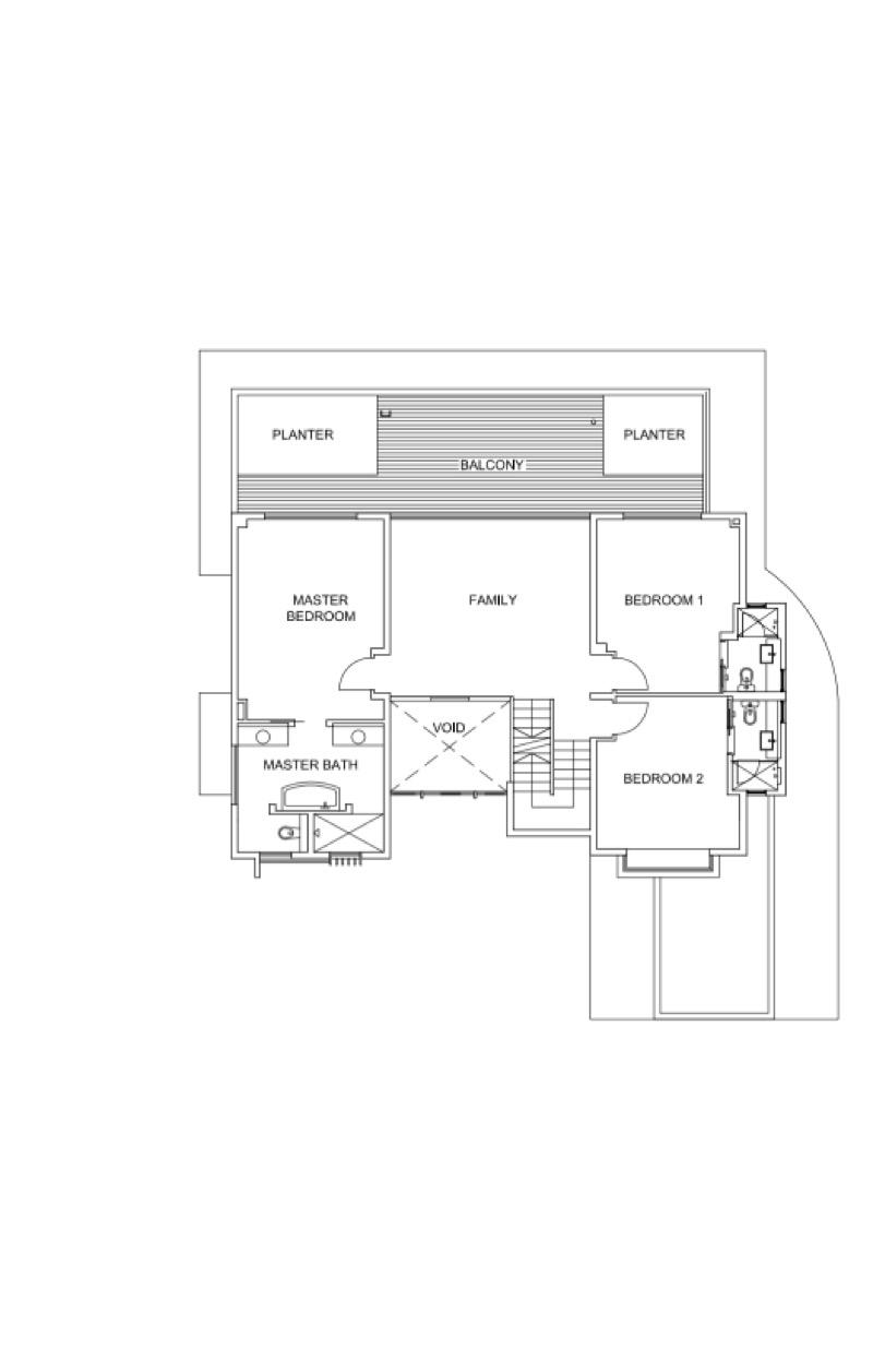
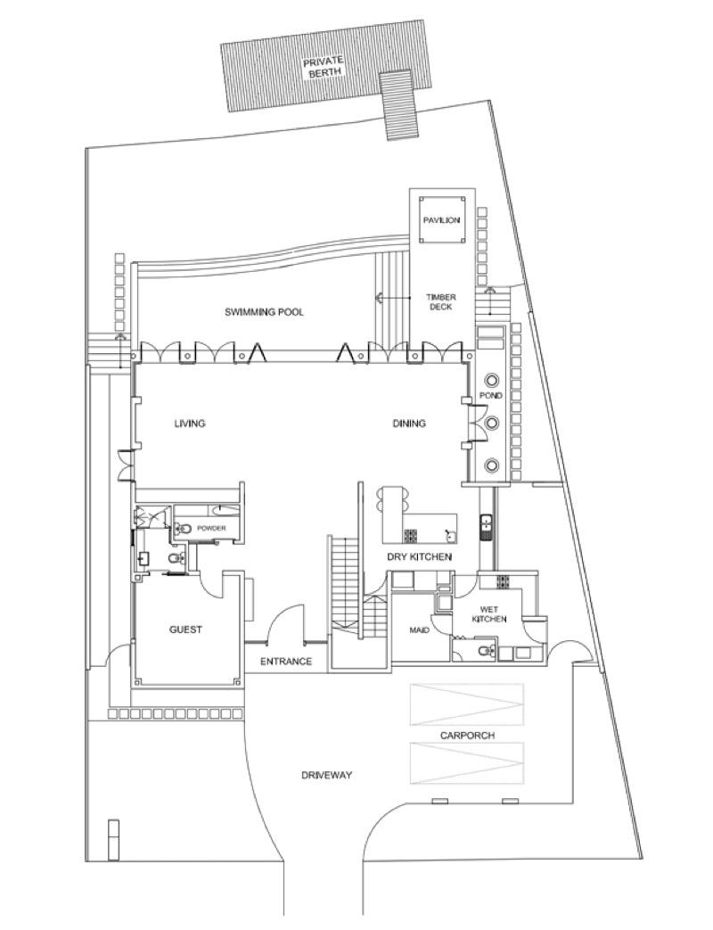
This magnificent 7-bedroom residence is designed to impress with its exquisite architecture and top-notch branded fittings. The thoughtfully planned living and dining areas overlook an inviting infinity pool, creating an ambiance of serenity and sophistication. The seamless blend of indoor and outdoor spaces is further enhanced by a riverside garden and private berth, perfect for yacht enthusiasts. A spacious basement media room caters to entertainment needs, making this home an entertainer's paradise.
Strategically located just a few steps from the exclusive breezy seaside trail, 168 Ocean Drive offers unrivaled convenience and tranquility. Foreigners are welcome to apply for purchase, adding to the property's allure as a global investment opportunity. With a 99-year leasehold tenure, this breathtaking abode promises not only a luxurious lifestyle but also the potential for long-term capital growth in one of Singapore's most sought-after districts. Don't miss your chance to own a piece of paradise in this world-renowned waterfront community.
Address
Ocean Drive, D04
D04