Riversails
Asking Price (SGD): 1,750,000
Type: Condominium
Tenure: 99-year Leasehold
Floor (sqft): 1109
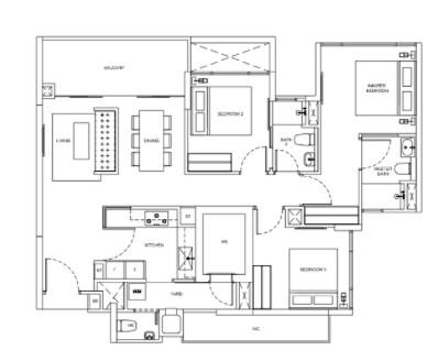
Bedrooms: 3
Bathrooms: 2

Designer 3-Bedroom Home with Pool View
Perfect for Families with Kids and Helper
Designer 3-Bedroom Home with Pool View | 103 sqm / 1,109 sqft
Tastefully Renovated | Thoughtful Layout | Ideal for Families
3 Bedrooms + Yard + Bomb Shelter
~$100K in Designer Renovation Move-in Ready
Bright, Breezy & Spacious 103 sqm / 1,109 sqft
Open-Concept Living, Dining & Kitchen
Utility Room Fits a Single Bed Perfect for a Helper
Stunning Pool View from the Living Area
Squarish, Efficient Layout No Wasted Space
Owner-Occupied Will Be Sold Vacant
This beautifully designed home is perfect for families with kids and a helper. Every detail has been thoughtfully planned to balance style and functionality.
Call Angela at 9886 6220 for your exclusive viewing today!
Address
Upper Serangoon Crescent, 534035, D19 534035
D19