Affinity At Serangoon
Asking Price (SGD): 1,050,000
Type: Condominium
Tenure: 99-year Leasehold
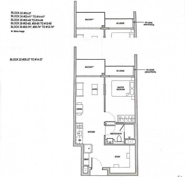
Floor (sqft): 614
Bedrooms: 1
Bathrooms: 1

New Listing Affinity at Serangoon
1 + Study for Sale
Tenanted till 14 Dec 2025 Great for Investors!
Discover modern living in this stylish 2-bedroom unit at the sought-after Affinity at Serangoon. A smart and efficient layout maximises space and comfort, making it an ideal choice for investors or future own-stay buyers.
Efficient 2-bedroom layout with enclosed kitchen
Bright & well-ventilated unit
Quiet facing, excellent privacy
Full condo facilities pools, gym, tennis court & more
Within 1km to Rosyth Primary School
Minutes to Serangoon MRT & Nex Mall via free condo shuttle
Close to eateries, supermarkets, and amenities
*The image is an artist's impression and is for illustrative purposes only. Actual design, and furnishings may differ.*
Contact me now to arrange a viewing or for more details!
Jen 90662926
Address
Serangoon North Avenue 1, 555902, D19 555902
D19