Grand Dunman
Starting From - SGD 4,333,000
Type: Condominium
Tenure: Leasehold 99
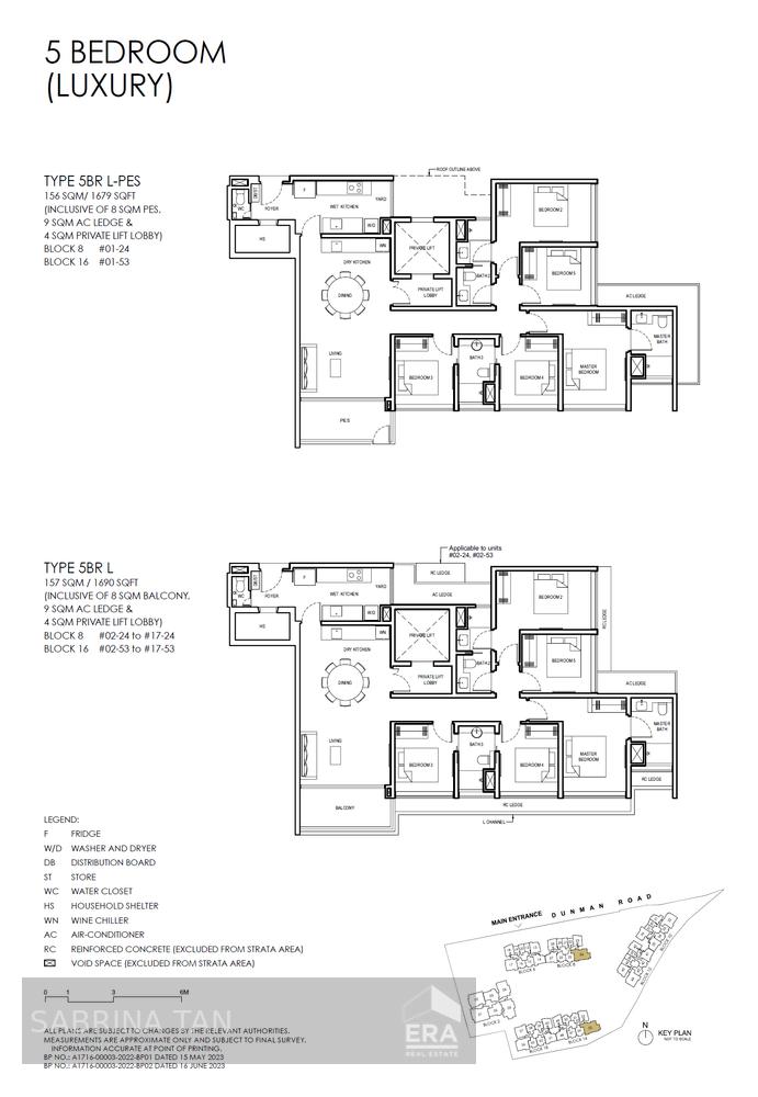
Floor (sqft): 1679
Bedrooms: 5
Bathrooms: 3

Developer: Singhaiyi Group Ltd
Constructed: Completion by 2
Grand Dunman
Grand Dunman is a 99-years leasehold condo development nestled in the coveted residential enclave of District 15. The development comprises 1,008 residential units ranging from one-to-five bedroom apartments (with Penthouse and Dual Key units).Right next to Dakota MRT (Circle Line)
The Food Haven - Old Airport Road Food Centre within 5 mins walk
Superb amenities - PLQ Mall, Paya Lebar Square, Singpost Centre
Doorstep to Park Connector
Reputable educational institutions - Chung Cheng High School (Main), Kong Hwa School, Tanjong Katong
Girls' School, Tanjong Centralised location - Paya Lebar Central, CBD, Suntec City & Marina Bay
6 Luxury blocks and 1 Grand block comprising of 1,008 units
Units with unblock view over Goodman and Wilkinson landed enclave Address
8 Dunman Road 439396
Amber Road, D15