The Continuum
Starting From - SGD 3,418,000
Type: Condominium
Tenure: Freehold
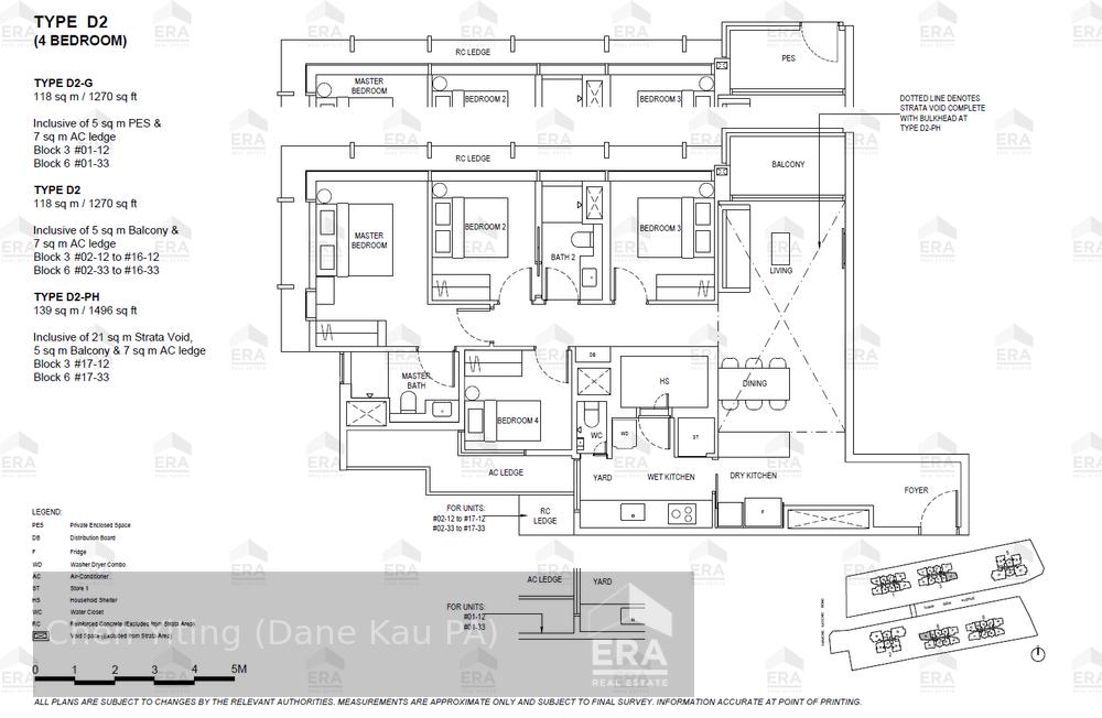
Floor (sqft): 1270.15
Bedrooms: 4
Bathrooms: 2

Constructed: Completion by 2
Spacious 4 Bedder Unit, Direct Developer Sale!
The Continuum is a freehold condominium which is developed by Hoi Hup Realty & Sunway Developments.
The Continuum is situated at the forefront of the transformation with the development Paya Lebar Airbase and poised to benefit from both the existing commercial hub and the future reinvigoration of the area.Extremely rare mega freehold development with 816 units on a huge site of 265,995 square feet.
Walking distance to 2 MRT stations, Paya Lebar Interchange (East-West Line / Circle Line) and Dakota MRT (Circle Line)
Prime district 15 location minutes away from CBD, Suntec City, Marina Bay, Orchard Road, and Paya Lebar Central
Within 1km to 3 renowned primary schools Kong Hwa School, Tanjong Katong Primary and Haig Girls School
Multitude of amenities from East Coast Park to eateries to major malls.
Flexible and customizable layouts from 1 bedroom + study to 5 bedroom
Jointly developed by Hoi Hup Realty and Sunway Developments
Contact your trusted Real Estate Advisor, Dane Kau @ 9I052386 for more info on this property and arrange viewing now! Address
3 Thiam Siew Avenue 436841
Amber Road, D15