Starbuy 1km to Kong Hwa, luxurious living for large families
Asking Price (SGD): 3,980,000
Type: Condominium
Tenure: 99-year Leasehold
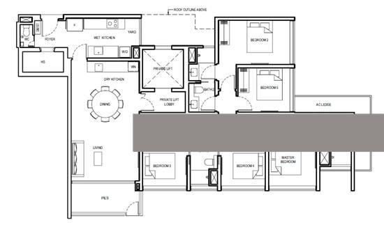
Floor (sqft): 1690
Bedrooms: 5
Bathrooms: 5

Furnishing: Partially Furnished
Discover your dream home in this stunning 5-bedroom, 5-bathroom condominium available now! Spanning a generous 1,690 sqft, this exquisite residence is situated in a vibrant neighborhood, just moments away from essential amenities.
Conveniently located, the Dakota MRT Station (1.3 km) and Mountbatten MRT Station (1.6 km) provide effortless commuting options. Families will appreciate the proximity to renowned educational institutions, including Tanjong Katong Secondary School (1.1 km) and Tanjong Katong Girls' School (1.2 km), ensuring quality education for your children. For your shopping needs, FairPrice Geylang Lorong 38 (1.5 km) and A Star Mobile Trading (1.4 km) are just a short drive away, making grocery shopping a breeze. Enjoy retail therapy at nearby shopping centers like Grandlink Square (1.5 km) and KINEX (1.6 km), offering a variety of dining and shopping options.
This condominium boasts exceptional unit features, including sleek cabinets, modern oven and microwave, energy-efficient fridge, and a cozy air conditioner to keep you comfortable year-round. Enjoy the tranquility of a poolside view from your balcony, while the security guard ensures peace of mind. Additional amenities include barbeque pits for delightful gatherings and covered car parking for your convenience.
With an ideal layout and an abundance of natural light, this property is a perfect blend of luxury and practicality. Don't miss the chance to make this stunning condominium your new homeschedule a viewing today and experience the lifestyle you've always wanted!
Address
, 439188, D15 439188
D15