Elliot at the East Coast
Asking Price (SGD): 4,200,000
Type: Condominium
Tenure: Freehold
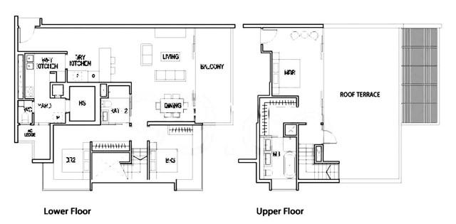
Floor (sqft): 2271
Bedrooms: 3
Bathrooms: 3

Furnishing: Partially Furnished
Exclusive penthouse living
Good size 3-bedroom unit at exclusive and quiet estate!
Back gate to Marine Parade Road, TEL MRT station.
Can convert into 4bed
Huge Living & dining area
Bright & unblock
Very well maintained unit
Good size balcony
** 3 bedrooms + Household Shelter
** 3 bathrooms, 2 ensuite
** Quiet unit with spacious, fully usable balcony
Mins away from the food street along East Coast Road & East cost park
Nearest shopping mall such as parkway parade, 112katong & Bedok mall
Address
Elliot Road, 458711, D15 458711
D15