Haus On Handy
Asking Price (SGD): 3,190,000
Type: Condominium
Tenure: 99-year Leasehold
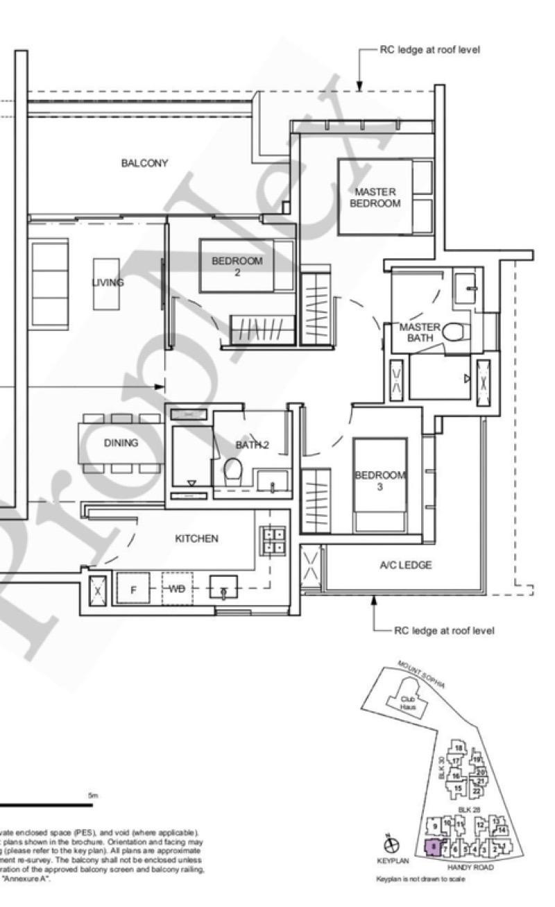
Floor (sqft): 1141
Bedrooms: 3
Bathrooms: 2

Furnishing: Fully Furnished
Discover an exceptional opportunity to own a modern condominium in the heart of District 09. Haus On Handy offers a spacious 3-bedroom unit with 2 bathrooms, thoughtfully designed for comfort and functionality. Built in 2023, this property features high ceilings that enhance the sense of space and elegance, making it perfect for first-time buyers, young professionals, or families seeking a stylish urban residence.
Priced reasonably , this property presents an outstanding value in a prime location. The L99 tenure ensures long-term ownership stability, while the propertys strategic positioning on Handy Road places residents within walking distance to major shopping malls and seamlessly connected to the city via nearby train stations. This combination of affordability and accessibility makes it an attractive investment or a perfect home.
Haus On Handy stands out as an undervalued gem in a highly sought-after area. Its great location, combined with modern design and competitive pricing, offers excellent potential for capital appreciation. Whether you are looking to settle down or expand your investment portfolio, this condo delivers a compelling opportunity in one of Singapores most vibrant districts.
Address
Handy Road, 229240, D09 229240
Cairnhill, D09