The Coast at Sentosa Cove
Asking Price (SGD): 4,800,000
Type: Condominium
Tenure: 99-year Leasehold
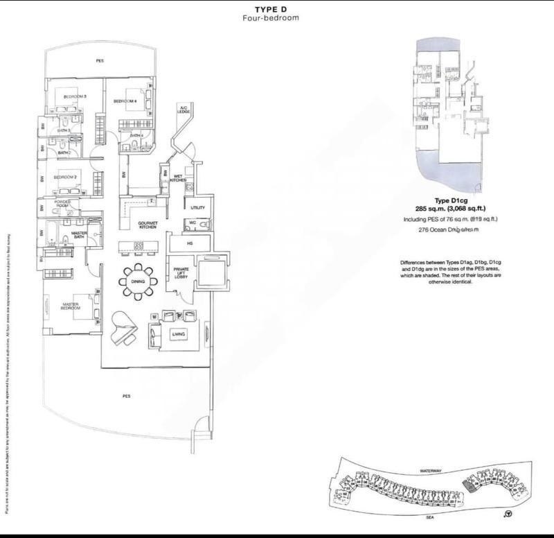
Floor (sqft): 3068
Bedrooms: 4
Bathrooms: 4

Furnishing: Partially Furnished
Have you ever imagined living in Sentosa Singapores most prestigious island address where every day feels like a private resort escape-
This exclusive enclave offers more than just a home; it presents an extraordinary lifestyle of elegance, prestige, and peace. Enjoy the feeling of landed living with expansive interiors, private balconies, and seamless indoor-outdoor flow all surrounded by calm waters and lush greenery.
Sentosa is not just about beauty and tranquility. Its a highly secure, inclusive environment with 24/7 surveillance, ensuring peace of mind for you and your family.
Whether you enjoy yachting, kayaking, or sunset strolls by the shore, sea activities are part of everyday life here. And when it's time to entertain, youre just minutes away from world-class restaurants, vibrant beach clubs, golf courses, and luxury spas all within the island.
This is a rare opportunity to embrace a truly refined lifestyle where the sea is your backyard and exclusivity is your everyday.
Welcome to Sentosa. Welcome to the art of living well.
Address
Ocean Drive, 098449, D04 098449
D04