SG
26488
5 6

The Vermont On Cairnhill

Asking Price (SGD): 2,400,000

Type: Apartment

Tenure: Freehold

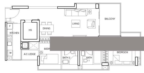
Floor (sqft): 893

Bedrooms: 2 Prop-GPT: Bedrooms  Bathrooms: 2 Prop-GPT: Bathrooms

Furnishing: Unfurnished


Contact Stephanie @ 8188 5522 for exclusive viewings!

893sqft high floor 2 bedder unit
Asking $2,400,000 negotiable
Just bring your luggage in!

> Why buy this house-
Freehold Unit in Prime district
Genuine seller
Prosperous Unit, Extreme good unit number
Good Size Bedrooms and Balcony
Well-maintained and good ventilation
Surrounded by good schools
Walking distance to 3 MRTs, Newton MRT (Red Line and Downtown Line) and Orchard MRT
Mins WALK to Orchard Road and near amenities

Main door facing: South East
Living hall 2 bedrooms 2 bathrooms dining area enclosed kitchen bomb shelter balcony

Address

Cairnhill Rise, 229745, D09 229745

Cairnhill, D09


Stephanie Kam

Prop-GPT: Stephanie Kam, The Vermont On Cairnhill Apartment For Sale, $2,400,000, 2 Bed 2 Bath 893 sqft $2,688.00 psf

Prop-GPT: Contact by Phone8188 5522   Prop-GPT: Contact by WhatsAppWhatsApp
Email: stephanie.kam@propnex.com Prop-GPT: Contact by email Email
Registration: R057226A

Brought to you by Prop-GPT: The AI-Powered Property Guru



Similar Posts



Prop-GPT: Apartment: D09 Cairnhill The Vermont On Cairnhill

The Vermont On Cairnhill

2 bedrooms, 2 bathrooms, 893 floor area | The Vermont On Cairnhill, D09, Singapore

S$ 2,380,000

Apartment, Freehold

893 sqft (floor)

2 Bedrooms2Bathrooms

Wendy Koh


Prop-GPT: Condominium: D09 Cairnhill Sophia Hills

Sophia Hills: Welcoming Hall and Balcony Space ...

3 bedrooms, 3 bathrooms, 1313 floor area | 27 Mount Sophia

Starting From - SGD 2,980,000

Condominium, Leasehold 99

1313 sqft (floor)

3 Bedrooms3Bathrooms

Jessica Thia


Prop-GPT: Condominium: D09 Cairnhill Cairnhill Astoria

Cairnhill Astoria

1 bedroom, 2 bathrooms, 1700 floor area | Cairnhill Astoria, D09, Singapore

S$ 2,999,999

Condominium, Freehold

1700 sqft (floor)

1 Bedrooms2Bathrooms

Loh Yeow Meng


Prop-GPT: Condominium: D09 Cairnhill Parc Mackenzie

Parc Mackenzie

2 bedrooms, 2 bathrooms, 904 floor area | Parc Mackenzie, D09, Singapore

S$ 1,850,000

Condominium, Freehold

904 sqft (floor)

2 Bedrooms2Bathrooms

Aloysius Ng


Prop-GPT: Apartment: D09 Cairnhill Hijauan

Hijauan Apartment For Sale, $2,400,000, 2 Bed 2 ...

2 bedrooms, 2 bathrooms, 1001 floor area | Cavenagh Road, 229618, D09

Asking Price (SGD): 2,400,000

Apartment, Freehold

1001 sqft (floor)

2 Bedrooms2Bathrooms

Linda Ong


Prop-GPT: Condominium: D09 Cairnhill 8 @ Mount Sophia

8 @ Mount Sophia Condominium For Sale, ...

3 bedrooms, 3 bathrooms, 1464 floor area | Mount Sophia, 228463, D09

Asking Price (SGD): 2,850,000

Condominium, 103-year Leasehold

1464 sqft (floor)

3 Bedrooms3Bathrooms

Phoebe Ang


Prop-GPT: Apartment: D09 Cairnhill Hijauan

Hijauan Apartment For Sale, $2,300,000, 2 Bed 2 ...

2 bedrooms, 2 bathrooms, 1001 floor area | Cavenagh Road, 229618, D09

Asking Price (SGD): 2,300,000

Apartment, Freehold

1001 sqft (floor)

2 Bedrooms2Bathrooms

Francis Lim


Prop-GPT: Condominium: D09 Cairnhill 8 Hullet

8 Hullet

1 bedroom, 1 bathroom, 538 floor area | 8 Hullet, D09, Singapore

S$ 2,190,000

Condominium, Freehold

538 sqft (floor)

1 Bedrooms1Bathrooms

Eugene Fung


Prop-GPT: Apartment: D09 Cairnhill The Peak @ Cairnhill II

The Peak @ Cairnhill II

2 bedrooms, 2 bathrooms, 904 floor area | The Peak @ Cairnhill II, D09, Singapore

S$ 2,100,000

Apartment, Freehold

904 sqft (floor)

2 Bedrooms2Bathrooms

Ally Khoo


Prop-GPT: Condominium: D09 Cairnhill Vida

Vida Condominium For Sale, $2,200,000, 2 Bed 2 ...

2 bedrooms, 2 bathrooms, 861 floor area | Peck Hay Road, 228307, D09

Asking Price (SGD): 2,200,000

Condominium, Freehold

861 sqft (floor)

2 Bedrooms2Bathrooms

J.X.Kang


Prop-GPT: Condominium: D09 Cairnhill Parc Emily

Parc Emily

2 bedrooms, 2 bathrooms, 904 floor area | Parc Emily, D09, Singapore

S$ 1,950,000

Condominium, Freehold

904 sqft (floor)

2 Bedrooms2Bathrooms

Rainbow Fan


Prop-GPT: Condominium: D09 Cairnhill The Collective At One Sophia

The Collective At One Sophia

2 bedrooms, 2 bathrooms, 764 floor area | The Collective At One Sophia, D09, Singapore

S$ 2,150,000

Condominium, 99-year lease

764 sqft (floor)

2 Bedrooms2Bathrooms

Karolina Lestiadi


Prop-GPT: Condominium: D09 Cairnhill Orchard Scotts

Orchard Scotts

2 bedrooms, 2 bathrooms, 958 floor area | Orchard Scotts, D09, Singapore

S$ 1,988,000

Condominium, 99-year lease

958 sqft (floor)

2 Bedrooms2Bathrooms

Avril Bin


Prop-GPT: Condominium: D09 Cairnhill Orchard Scotts

Orchard Scotts

2 bedrooms, 2 bathrooms, 958 floor area | Orchard Scotts, D09, Singapore

S$ 1,988,000

Condominium, 99-year lease

958 sqft (floor)

2 Bedrooms2Bathrooms

Pamela Lim


Prop-GPT: Apartment: D09 Cairnhill Orchard Sophia

Orchard Sophia

2 bedrooms, 2 bathrooms, 667 floor area | Orchard Sophia, D09, Singapore

S$ 2,122,600

Apartment, Freehold

667 sqft (floor)

2 Bedrooms2Bathrooms

Christopher Go


Prop-GPT: Condominium: D09 Cairnhill Orchard Scotts

Orchard Scotts

2 bedrooms, 2 bathrooms, 925 floor area | Orchard Scotts, D09, Singapore

S$ 1,988,000

Condominium, 99-year lease

925 sqft (floor)

2 Bedrooms2Bathrooms

Christopher Quek


Prop-GPT: Condominium: D09 Cairnhill Kopar At Newton

Kopar At Newton

3 bedrooms, 2 bathrooms, 915 floor area | Kopar At Newton, D09, Singapore

S$ 2,550,000

Condominium, 99-year lease

915 sqft (floor)

3 Bedrooms2Bathrooms

Lawrence Loon


Prop-GPT: Condominium: D09 Cairnhill The Collective at One Sophia

The Collective at One Sophia

2 bedrooms, 1 bathroom, 646 floor area | 1a Sophia Road

Price on Enquiry - SGD 1,806,000

Condominium, Leasehold 99

646 sqft (floor)

2 Bedrooms1Bathrooms

Sean Lee


Prop-GPT: Condominium: D09 Cairnhill 8 @ Mount Sophia

8 @ Mount Sophia Condominium For Sale, ...

3 bedrooms, 3 bathrooms, 1464 floor area | Mount Sophia, 228463, D09

Asking Price (SGD): 2,849,999

Condominium, 103-year Leasehold

1464 sqft (floor)

3 Bedrooms3Bathrooms

Phoebe Ang


Prop-GPT: Condominium: D09 Cairnhill The Collective at One Sophia

The Collective at One Sophia

2 bedrooms, 1 bathroom, 646 floor area | 1a Sophia Road

Price on Enquiry - SGD 1,806,000

Condominium, Leasehold 99

646 sqft (floor)

2 Bedrooms1Bathrooms

Sean Lee

   ← back to search results

QUICK LINKS