Normanton Park
Asking Rent (SGD/month): 9,999
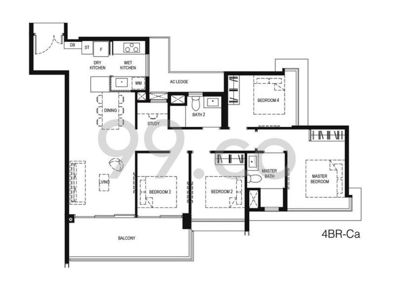
Type: Condominium
Floor (sqft): 1195
Bedrooms: 4
Bathrooms: 2

Furnishing: Fully Furnished
4 Bedroom unit for Rent, Grab Fast!
FULLY FURNISH UNIT
Nearby amenities (5-7min drive)
Cold Storage (Fusionopolis)
FairPrice (NUH Medical Centre)
Queensway Shopping Centre
Star Vista
Rochester Mall
Anchorpoint
Ikea
Nearby Primary Schools (between 1-2km):
Fairfield Methodist Primary School
Newtown Primary School
Queenstown Primary School
Short term lease welcomed!
Address
Normanton Park, 117286, D05 117286
D05