Parc Botannia
Asking Price (SGD): 1,800,000
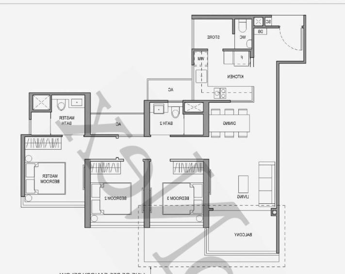
Type: Condominium
Tenure: 99-year Leasehold
Floor (sqft): 980
Bedrooms: 3
Bathrooms: 3

Furnishing: Partially Furnished
Sincere Seller!
3bed, 3bath.
High floor
Unblocked views.
Nice, serene facing.
Apartment overlooking Fernvale Park!
Proximity to good Primary schools
- Fern Green Primary (1km)
- Sengkang Green Primary (1km)
- Fernvale Primary (1km)
- Nan Chiau Primary
- Anchor Green Primary
- Springdale Primary
Convenient!
-Just mins walk to Thanggam LRT.
-1stop to Seletar Mall, Hawker Center & Market at Fernvale LRT
-Stroll to Jalan Kayu prata, shops and eateries.
-Easy access to TPE, SLE
More info, call 97.53.1233 Doris
.
Address
Fernvale Street, 797394, D28 797394
Seletar, D28