Avenue South Residence
Asking Price (SGD): 1,600,000
Type: Condominium
Tenure: 99-year Leasehold
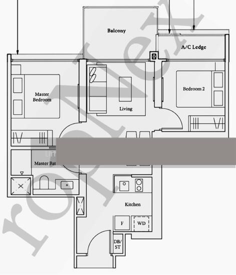
Floor (sqft): 656
Bedrooms: 2
Bathrooms: 1

Furnishing: Unfurnished
Discover luxury living at Avenue South Residence, an exquisite condominium perfectly positioned at 11 Silat Avenue, facing the future Greater Southern Waterfront. This high-floor unit boasts a contemporary design with two spacious bedrooms and one bathroom, ideal for young professionals and first-time home buyers seeking an elegant urban lifestyle. With a construction year of 2023, this property offers modern aesthetics and functionality. Priced at $1,600,000, it represents a valuable opportunity in the coveted District 03.
This active listing is situated in a vibrant neighborhood, renowned for its convenience and connectivity. Avenue South Residence is part of a dynamic community with easy access to business hubs, shopping, and entertainment. Its location on Silat Avenue ensures youre never far from the action, while maintaining a tranquil residential ambiance. The property is categorized under L99 tenure, providing long-term security for investors and home buyers alike.
For those looking to invest or find a dream home in Singapore's luxury market, this property is a rare find. The Avenue South Residence combines luxury and practicality, offering a premium living experience in a sought-after location. Dont miss the chance to secure this condominium for salean apartment that seamlessly blends urban sophistication with investment potential.
Address
Silat Avenue, 168877, D03 168877
Tiong Bahru, D03