AU
18008
12 6

Home For Rent

$680 per week

Type: House

Bedrooms: 4 Prop-GPT: Bedrooms  Bathrooms: 2 Prop-GPT: Bathrooms  Car parking spaces: 4 Prop-GPT: Car parking spaces


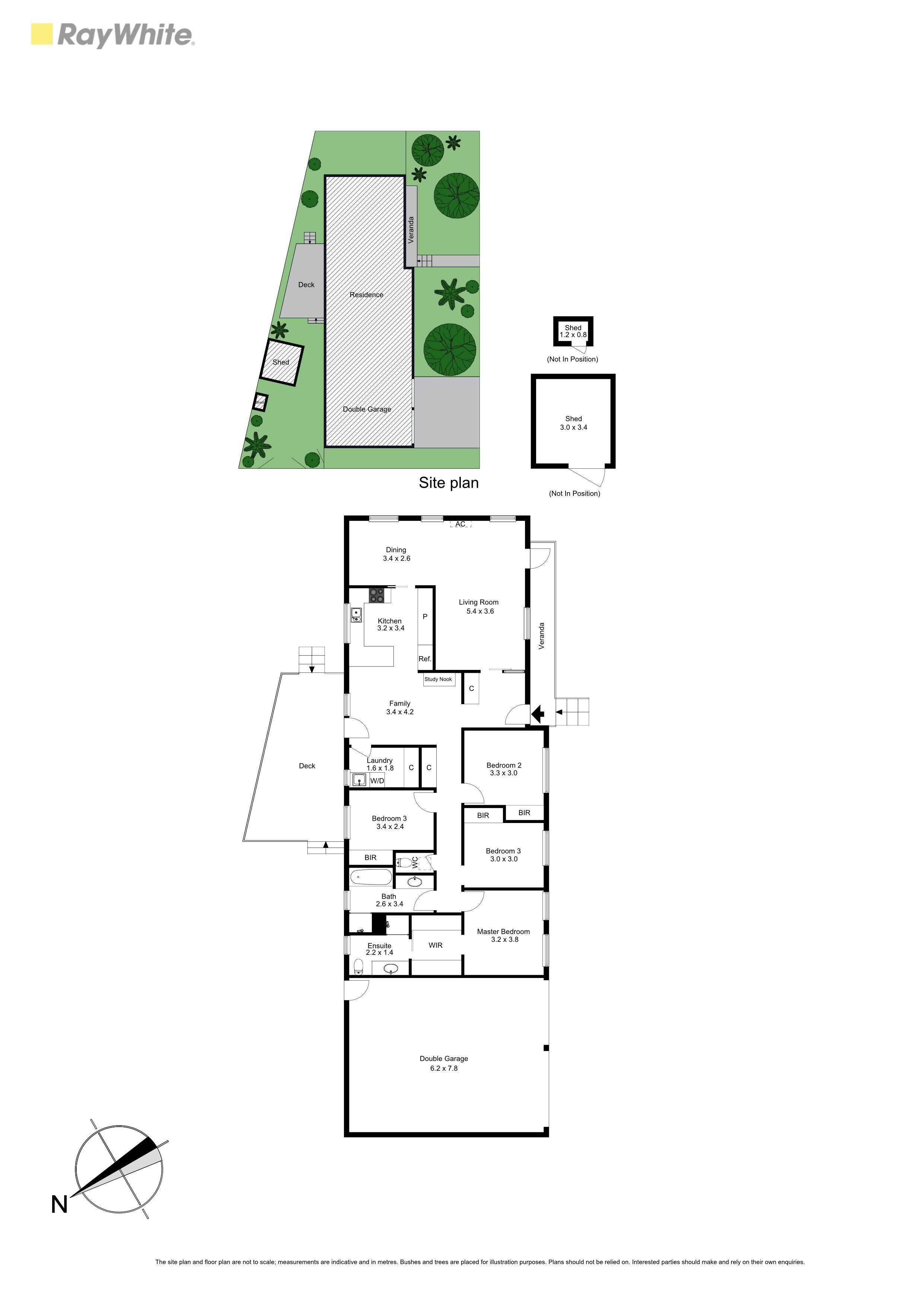
Your Lakewood Family Retreat

Tucked away in the highly desirable Lakewood Estate, this stylish four-bedroom home delivers effortless family living with an emphasis on space, comfort, and contemporary flair. Perfectly positioned just moments from Shaxton Circle's popular Round About Café and local shops, and within walking distance to the leafy Shaxton Reserve, this home offers the lifestyle families dream of.

Features include:

- Light-filled L-shaped lounge and dining area, plus a second living/meals space

- Central kitchen with stainless steel appliances, breakfast bar, and ample storage

- Large elevated deck, ideal for entertaining and weekend barbecues

- Four well-zoned bedrooms with built-in robes, master with walk-in robe and ensuite

- Family bathroom with separate bath and shower, plus dedicated laundry

- Remote double garage, secure rear yard, and garden shed

- Brand-new ducted heating and split system cooling for year-round comfort

- Low-maintenance block for easy living

- Conveniently located near Mt. Erin College, Kingsley Park Primary, shops, parks, and Peninsula Link

Whether you're upsizing for family space or seeking a home in a welcoming neighbourhood, this property combines comfort, convenience, and community in one of Frankston's most sought-after pockets.


***It is a requirement of entry to all Ray White Frankston Rental Inspections that a valid photo ID is presented to the Leasing Agent. Information not limited to name and ID number may be recorded in accordance with our Privacy Policy.***

Disclaimer: Whilst every care is taken in the preparation of the information contained in this marketing, Ray White Frankston will not be held liable for any errors in typing or information. All interested parties should rely upon their own enquiries in order to determine whether or not this information is in fact accurate.

Address

304 Heatherhill Road, Frankston Victoria 3199, Australia 3199

Frankston, VIC 3199, VIC

Other Facilities/Amenities: http://raywhitefrankston.com.au/R4024613



Brought to you by Prop-GPT: The AI-Powered Property Portal



Similar Posts



Prop-GPT: House: VIC Cape Paterson, VIC 3995 Home For Rent

Your Dream Coastal Escape Awaits

4 bedrooms, 2 bathrooms | 10 The Inlet, Cape Paterson Victoria 3995, Australia

$600 per week

4 Bedrooms2Bathrooms

Rentals Wonthaggi


Prop-GPT: House: VIC Cape Paterson, VIC 3995 Home For Rent

Serenity By The Sea

4 bedrooms, 2 bathrooms, 2 parking | 91 Seaward Drive, Cape Paterson Victoria 3995, Australia

$520 per week

486 sqm (land)

4 Bedrooms2Bathrooms2Cars

Rentals Wonthaggi


Prop-GPT: House: VIC Inverloch, VIC 3996 Home For Rent

Modern 3-Bedroom Home - Close to the Beach - ...

3 bedrooms, 2 bathrooms, 2 parking | 83 Tamara Crescent, Inverloch Victoria 3996, Australia

$570 per week

592 sqm (land)

3 Bedrooms2Bathrooms2Cars

Olivia Hughes


Prop-GPT: House: VIC Inverloch, VIC 3996 Home For Rent

Coastal Comfort: Modern 3-Bedroom Home in ...

3 bedrooms, 2 bathrooms, 2 parking | 28 Correa Place, Inverloch Victoria 3996, Australia

$600 per week

544 sqm (land)

3 Bedrooms2Bathrooms2Cars

Olivia Hughes


Prop-GPT: House: VIC North Wonthaggi, VIC 3995 Home For Rent

Architectural Elegance!

3 bedrooms, 2 bathrooms, 1 parking | 123B Broome Crescent, Wonthaggi Victoria 3995, Australia

$540 per week

3 Bedrooms2Bathrooms1Cars

Rentals Wonthaggi


Prop-GPT: House: VIC North Wonthaggi, VIC 3995 Home For Rent

High quality home awaits you

3 bedrooms, 2 bathrooms, 1 parking | 57A Hagelthorn Street, Wonthaggi Victoria 3995, Australia

$520 per week

3 Bedrooms2Bathrooms1Cars

Rentals Wonthaggi


Prop-GPT: House: VIC North Wonthaggi, VIC 3995 Home For Rent

Modern Comfort

5 bedrooms, 2 bathrooms, 2 parking | 6 Hummingbird Drive, Wonthaggi Victoria 3995, Australia

$650 per week

5 Bedrooms2Bathrooms2Cars

Rentals Wonthaggi


Prop-GPT: House: VIC South Dudley, VIC 3995 Home For Rent

Character filled home

4 bedrooms, 2 bathrooms | 21 Carl Street, South Dudley Victoria 3995, Australia

$510 per week

4 Bedrooms2Bathrooms

Rentals Wonthaggi


Prop-GPT: House: VIC North Wonthaggi, VIC 3995 Home For Rent

Stylish Family Living

4 bedrooms, 2 bathrooms, 2 parking | 26 Domain Drive, Wonthaggi Victoria 3995, Australia

$580 per week

4 Bedrooms2Bathrooms2Cars

Rentals Wonthaggi


Prop-GPT: House: VIC North Wonthaggi, VIC 3995 Home For Rent

North Side Family Home

3 bedrooms, 2 bathrooms, 2 parking | 23 Obrien Circuit, North Wonthaggi Victoria 3995, Australia

$510 per week

3 Bedrooms2Bathrooms2Cars

Rentals Wonthaggi

   ← back to search results