AU
17289
25 6

Home For Rent

Weekly rent is $880/wk

Type: House

Bedrooms: 4 Prop-GPT: Bedrooms  Bathrooms: 2 Prop-GPT: Bathrooms  Car parking spaces: 2 Prop-GPT: Car parking spaces


Double School Catchment!!! Find Your Cozy Home In This Gorgeous Property

Situated on one of Wishart's most desirable streets, this impeccably maintained low-set
brick and tile home epitomizes low-maintenance living combined with modern convenience.
Positioned within the highly sought-after catchment areas of Mansfield State High and
Wishart State School, this quality four-bedroom plus home office residence is a rare
opportunity on a spacious 646m2 flood-free block-truly a home to rent!

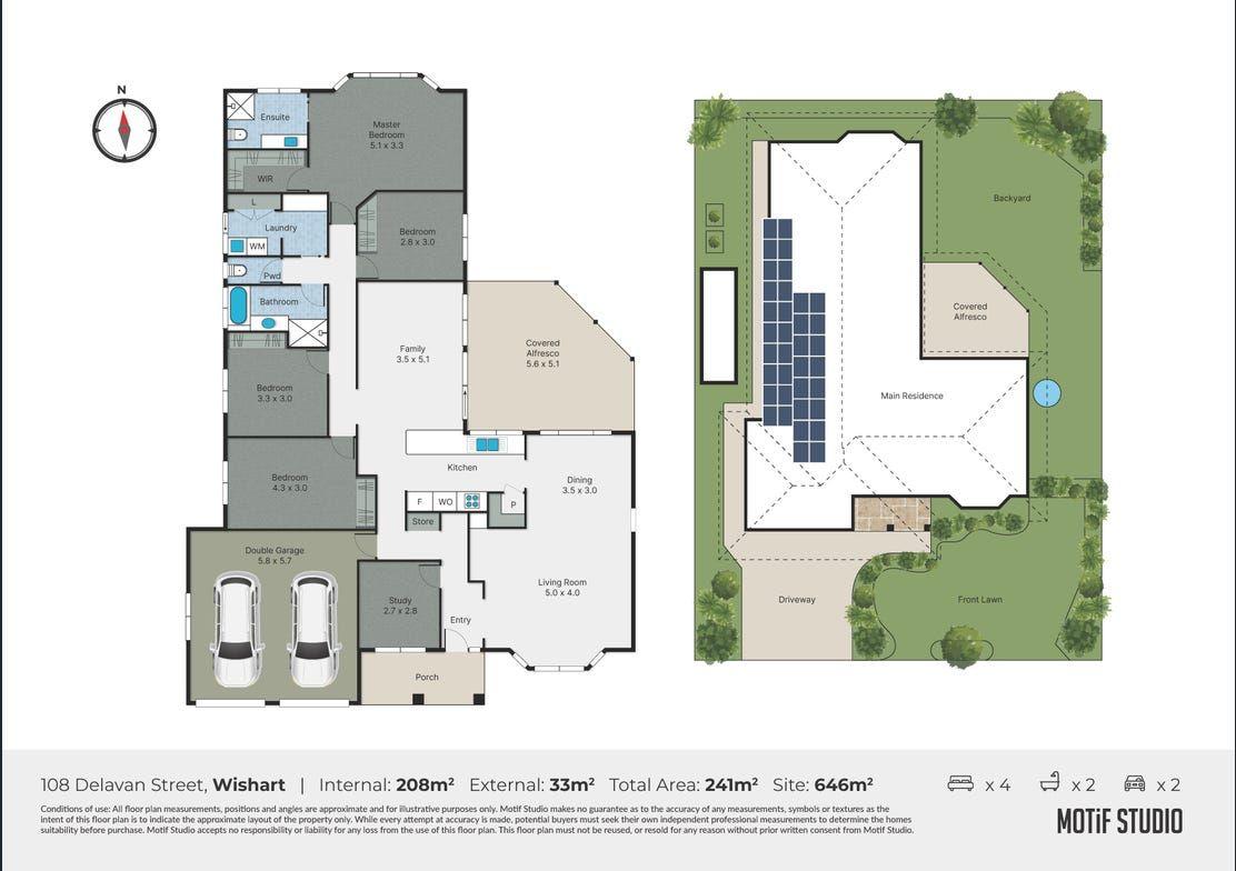
Property Highlights:

• Multiple Light-Filled Living Areas -- Ideal for modern family living with abundant space for relaxation and entertainment, including two formal lounges.
• Four Generous Bedrooms Plus Home Office-- Each carpeted, with the master suite featuring an ensuite and walk-in robe. The home office is perfectly suited for remote work or study, adding to the home's versatile layout.
• Centrally Located Kitchen-- Ample storage space, seamlessly connecting the family room to formal areas and the expansive outdoor entertaining area.
• Large Covered Alfresco-- Perfect for year-round gatherings in comfort and style.
• Climate Control-- Multiple split-system air conditioning units, ceiling fans, and solar power ensure comfort and efficiency in every season.
• Secure Double Garage-- Remote-controlled with internal access for convenience and safety.
• Low-Maintenance Yard--Landscaped 646m2 yard with a secure area for children and pets, surrounded by mature trees and hedging.
• Prime School Zoning-- Located within the prestigious Mansfield State High and Wishart State School catchments.

This master-built home features solid hardwood framing and a durable tiled roof. Lovingly
maintained by its owners, it stands ready to welcome a new family. Nestled among other
high-quality homes and adjacent to Delavan Street Park, the property's street appeal is
undeniable. The private, leafy entry offers a warm welcome into this timeless residence.

Upon entry, you'll find expansive living spaces tailored for the needs of a modern family. The
large formal lounge, separate dining/office room, and additional formal lounge provide
essential separation, ensuring both privacy and functionality. The kitchen, located at the
heart of the home, effortlessly links the family room with formal areas and opens to the
vast, roofed alfresco space-an entertainer's dream.

The generous yard serves as a private retreat, offering a secure environment for children
and pets, with excellent visibility from key areas of the home. This green oasis provides a
serene escape from the fast pace of daily life.

The four carpeted bedrooms are well-suited to a growing family. The master bedroom is
equipped with an ensuite and walk-in robe, while the main bathroom, complete with a
separate toilet, meets the demands of modern living.

The double remote-control garage offers safe and convenient internal access, making it easy
to unload groceries or keep passengers dry during inclement weather.

Address

108 Delavan Street, Wishart Queensland 4122, Australia 4122

Wishart, QLD 4122, QLD

Other Facilities/Amenities: https://raywhitesunnybankhills.com.au/R3...



Brought to you by Prop-GPT: The AI-Powered Property Portal



Similar Posts



Prop-GPT: House: NSW Wooloweyah, NSW 2464 Home For Rent

Furnished Home In Wooloweyah!

4 bedrooms, 2 bathrooms, 1 parking | 108 Lakes Boulevard, Wooloweyah New South Wales 2464, Australia

$750.00

496 sqm (land)

4 Bedrooms2Bathrooms1Cars

Rhiannon Benstead


Prop-GPT: House: NSW Yamba, NSW 2464 Home For Rent

The Yamba House

3 bedrooms, 2 bathrooms, 1 parking | 54 Yamba Street, Yamba New South Wales 2464, Australia

$850.00

3 Bedrooms2Bathrooms1Cars

Ray White Yamba Property Management


Prop-GPT: House: NSW Yamba, NSW 2464 Home For Rent

4 Bedroom Home with Inground Pool

4 bedrooms, 2 bathrooms, 2 parking, 203 floor area | 2 Bayview Drive, Yamba New South Wales 2464, Australia

800.00

203 sqm (floor), 942 sqm (land)

4 Bedrooms2Bathrooms2Cars

Rhiannon Benstead


Prop-GPT: House: NSW Yamba, NSW 2464 Home For Rent

Large family home - available furnished or ...

3 bedrooms, 2 bathrooms, 4 parking, 203 floor area | 5 Buccaneers Court, Yamba New South Wales 2464, Australia

$750

203 sqm (floor), 605 sqm (land)

3 Bedrooms2Bathrooms4Cars

Ray White Yamba Property Management


Prop-GPT: House: NSW Yamba, NSW 2464 Home For Rent

Modern & Convenient!

3 bedrooms, 2 bathrooms, 2 parking | 36C Park Avenue, Yamba New South Wales 2464, Australia

660.00

3 Bedrooms2Bathrooms2Cars

Rhiannon Benstead


Prop-GPT: House: NSW Yamba, NSW 2464 Home For Rent

3 Bedroom Large Home with Office

3 bedrooms, 2 bathrooms, 4 parking | 4 Gumnut Road, Yamba New South Wales 2464, Australia

660.00

3 Bedrooms2Bathrooms4Cars

Rhiannon Benstead


Prop-GPT: House: NSW Yamba, NSW 2464 Home For Rent

4 Bedroom Family Home

4 bedrooms, 2 bathrooms, 3 parking | 52 Acacia Circuit, Yamba New South Wales 2464, Australia

$800.00

660 sqm (land)

4 Bedrooms2Bathrooms3Cars

Rhiannon Benstead


Prop-GPT: House: NSW Meerschaum Vale, NSW 2477 Home For Rent

Resort Style Living

5 bedrooms, 3 bathrooms, 3 parking | 142 Bartletts Lane, Meerschaum Vale New South Wales 2477, Australia

$1,000 per week

5 Bedrooms3Bathrooms3Cars

Emily Ronan


Prop-GPT: House: NSW Meerschaum Vale, NSW 2477 Home For Rent

Resort Style Living

5 bedrooms, 3 bathrooms, 3 parking | 142 Bartletts Lane, Meerschaum Vale New South Wales 2477, Australia

$1,000 per week

5 Bedrooms3Bathrooms3Cars

Emily Ronan


Prop-GPT: House: NSW Caniaba, NSW 2480 Home For Rent

Spacious Family Home with Rural Outlook

5 bedrooms, 2 bathrooms, 3 parking | 25 Nimoola Road, Caniaba New South Wales 2480, Australia

$820 per week

5 Bedrooms2Bathrooms3Cars

Chelle Greenwood


Prop-GPT: House: NSW Goonellabah, NSW 2480 Home For Rent

A place to call home and listen to the abundance ...

4 bedrooms, 2 bathrooms, 2 parking | 4 Schurr Drive, Goonellabah New South Wales 2480, Australia

$900 per week

4 Bedrooms2Bathrooms2Cars

Yvonne Green


Prop-GPT: House: NSW Lismore Heights, NSW 2480 Home For Rent

Spacious Family Home in a Sought-After Location

5 bedrooms, 2 bathrooms, 2 parking | 7 Robrown Drive, Lismore Heights New South Wales 2480, Australia

$670 per week

5 Bedrooms2Bathrooms2Cars

Chelle Greenwood


Prop-GPT: House: NSW Suffolk Park, NSW 2481 Home For Rent

Charming 2-Bedroom House for Lease in Suffolk Park

2 bedrooms, 1 bathroom, 1 parking | 6/9-13 Clifford Street, Suffolk Park New South Wales 2481, Australia

$720 per week

2 Bedrooms1Bathrooms1Cars

Jodi Smith

   ← back to search results